West Lynn Residence

Project Details

Project Name
West Lynn Residence
Location
AustinTexas
Project Types
Single Family
Project Status
Built
Year Completed
2022
Size
8,290 ft²

Project Description

This project was selected as an Honor winner in the 2023 Residential Architect Design Awards, Renovation / Adaptive Reuse category.

[The metal façade] is a nice [example of craftsmanship], but then there is this deeper story pulled from the surrounding trees that offers a subtlety that feels quite natural.” —Benjamin Anderson

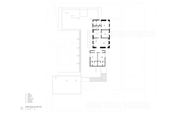
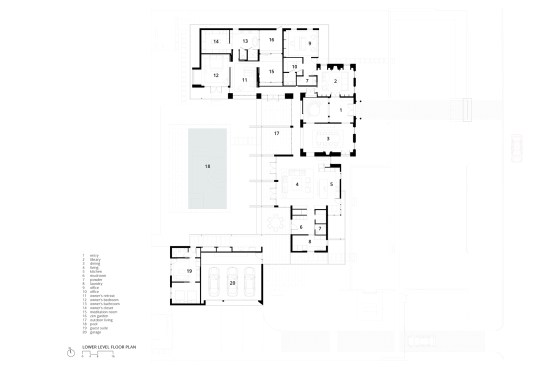
Agracious Georgian Revival house in Austin, Texas, becomes the object of a sharp, Modernist-inflected intervention in the West Lynn Residence, an exercise in comfortable cool from local firm A Parallel Architecture. Recognizing the potential of the existing structure, a handsome brick-bound manse replete with dormer windows, the designers used it as the canvas for a wholly original interior composition. Stripped to their essentials, the traditional living spaces retain a few decorative details while taking on a refreshing airiness and openness; at the same time, an entirely new, glass- and brick-clad addition has been built into the house’s original frame, extending it into the surrounding yard and affording opportunities for indoor-outdoor socializing.

The aesthetic pleasure of the house comes chiefly from the collisions, the combinations, and the at times almost imperceptible blending of the two environments—the old staircase, reinvented as a smooth white spiral, stands in sharp contrast to the rigid steel frame of the new glazed façade just a few feet away, while the intimate recesses and courtyards of the extension come as a striking transition after the subdued grandeur of the central house. From the exterior, the two volumes make for an unlikely yet complementary pairing, beckoning the visitor onward to discover the surprises within.

PROJECT CREDITS
Project: West Lynn Residence, Austin, Texas
Architect: A Parallel Architecture, Austin, Texas. Principal-in-Charge: Ryan Burke, AIA; Principal-in-Charge: Eric Barth, AIA; Project Architect: Diane Hong; Project Designer: Michael Battjes
Interior Designer: Ten Plus Three
Mechanical Engineer HVAC Consultant: Fresh Air HVAC Sizing
Structural Engineer: MJ Structures
General Contractor: Shoberg Homes
Landscape Architect: Ten Eyck Landscape Architects
Lighting Designer: Studio Lumina
Geotechnical Engineer: Capital Geotechnical Services

MATERIALS AND SOURCES
Appliances: Wolf; Sub-Zero; Miele; Summit; Sirius; Fire Magic
Bathroom Fixtures: Kohler; Waterworks; Lacava; Toto; Blanco
Custom Millwork: Buda Woodworks
Outdoor Cabinets: Danver
Exterior Wall Systems: Richlite
Fabrics and Finishes: Ann Sacks
Hardware: Rocky Mountain Hardware; House of Antique Hardware; Emtek
HVAC: Mitsubishi VRF; Santa Fe Products Ultra-Aire; Panasonic Whisperline
Kitchen fixtures: Rocky Mountain Hardware; Watermark
Lighting Control Systems: Lutron Homeworks
Lighting: Bocci; Visual Comfort & Co.; Jonathan Browning Studios
Masonry and Stone: Reclaimed Brick with Stoopen & Meeus Badgeon Slurry Wash Coat
Custom Steel Fabrication: Drophouse Design
Paints and Finishes: Benjamin Moore; Farrow & Ball
Roofing: Ecostar Synthetic Slate
Windows and Doors: Velux Skylights; Durango Doors; Quantum Windows and Doors; Windsor Pinnacle Clad

Upcoming Events

  • Design Smarter: Leveraging GIS, BIM, and Open Data for Better Site Selection & Collaboration

    Live Webinar

    Register for Free
  • Slate Reimagined: The Surprising Advantages of Slate Rainscreen Cladding

    Webinar

    Register Now
  • The State of Residential Design Today: Innovations and Insights from RADA-Winning Architects

    Webinar

    Register for Free
All Events