West End Square 50

Project Details

Project Name
West End Square 50
Location
WashingtonDC
Architect
TEN Arquitectos
Project Types
Mixed-Use
Project Scope
New Construction
Shared By
Ayda Ayoubi
Project Status
Built
Year Completed
2017
Size
88,901 ft²

Project Description

FROM THE ARCHITECTS:

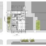
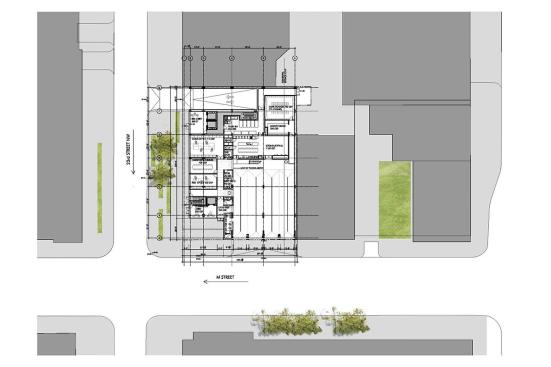
The project’s location in the heart of the West End neighborhood of Washington DC, is located at the prominent northeast corner of M Street and 23rd Street. The base of the building is proudly pronounced on M Street with a perforated corrugated metal-clad red box of the apparatus bay.

The main public spaces are located in a two-story glass box along 23rd Street. The use of light materials of metal and glass convey openness and agility. Posturing above this box, is a rectangular volume encompassing the two-story squash club that recedes on M street and cantilevers on 23rd street.

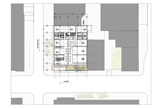
By pulling back the mass of the squash club on M Street, a public terrace is created providing a framed view of M street and enlivening the existing street activity. Perched above these volumes is a block of affordable residential housing. Built of a simple window wall system, with expanded metal mesh screens, the materials are modest, but provide ample light and views for the residents.

Upcoming Events

  • Design Smarter: Leveraging GIS, BIM, and Open Data for Better Site Selection & Collaboration

    Live Webinar

    Register for Free
  • Slate Reimagined: The Surprising Advantages of Slate Rainscreen Cladding

    Webinar

    Register Now
  • The State of Residential Design Today: Innovations and Insights from RADA-Winning Architects

    Webinar

    Register for Free
All Events