West Broadview Residence

Project Details

Project Name
West Broadview Residence
Architect
KZ Architecture
Project Types
Shared By
dmadsen
Project Status
Built
Size
5,300 ft²

Project Description

The Residence was designed for a family of five in an infill waterfront lot. The design hoped to embrace the clients’ lifestyle, incorporate the landscape and provide a neutral backdrop to the modern art and furnishings which they have collected over the years.
By integrating interior and exterior living areas, the home provides an ideal setting for informal South Florida living. Defined by a modern aesthetic, the dwelling also pays tribute to the Miami Modern movement, as it is located within a modernist town developed in the 1950s on two islands off the South Florida Intracoastal Waterway.
Given the long, narrow plot, leading from the road to the bay, with neighbors close on both sides, the house was designed opening to the shorter front and back ends while maintaining privacy along the sides.
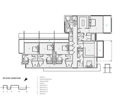
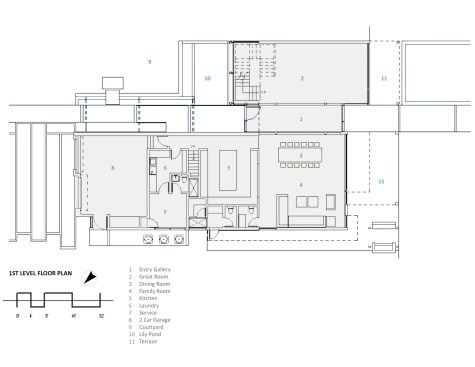
The geometry of the house is defined by two orthogonal volumes which are in dialogue with each other and with the site. These are separated by a circulation spine that begins outside as an entry walkway, sheltered by a canopy overhead, and continues indoors as a gallery leading to a pool deck and a bayside dock beyond.
The plans are an expression of the home’s purpose. The larger volume contains most of the program; the smaller one provides a ceremonial envelope for the living room, the sculptural stair and the master bedroom above.
There is an effort to maximize natural daylight in every room of the house. With the exception of the children’s bedrooms, which are oriented towards the courtyard, all rooms have views towards the water landscape.
The structure expresses a dialogue between the pile construction as illustrated in the ceremonial volume and the desire for grounding as represented by the stone wall on the other side of the central axes.
The greatest challenge was to achieve the desired sense of lightness and openness given the stringent hurricane requirements that limits the expanses of glass and requires wide mullions between glass panels.
By keeping the South volume shorter, a courtyard is carved out to one side of the entry walk.
The continuous visual expansiveness from the front courtyard to the bay is punctuated by the sculptural stair. The lily pond draws ones’ view through the living room and out to the water.

Upcoming Events

  • Design Smarter: Leveraging GIS, BIM, and Open Data for Better Site Selection & Collaboration

    Live Webinar

    Register for Free
  • Slate Reimagined: The Surprising Advantages of Slate Rainscreen Cladding

    Webinar

    Register Now
  • The State of Residential Design Today: Innovations and Insights from RADA-Winning Architects

    Webinar

    Register for Free
All Events