Wellin Museum of Art at Hamilton College

Project Details

Project Name
Wellin Museum of Art at Hamilton College
Location
198 County Road 13ClintonNY13323
Architect
Machado Silvetti
Project Types
Project Scope
New Construction
Shared By
Jeffry Burchard
Project Status
Built
Year Completed
2012

Project Description

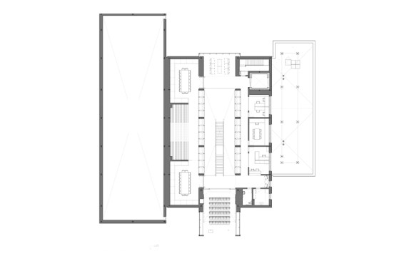
The Wellin Museum is prominently sited on a corner lot, across the road from the Art History department and across a gracious lawn from the future Theatre and Studio Arts Building. This collection of art buildings around a reconstructed pond, designed with Reed Hilderbrand Associates, will create a new arts quad at Hamilton and help develop visual and pedestrian connections between the two sides of campus, a stated goal of the College. Working closely with the faculty, Machado and Silvetti Associates developed a design, which brings museum visitors directly from campus paths and outdoor sculpture areas through a monumental two-story glass archive hall that showcases the College’s unique collection. The building’s plan and massing follows a clear tripartite diagram, with the “cabinet of curiosities” entry lobby and archives at the center flanked by a gallery wing to the West and a service wing to the East.

To put the workings of the museum on display, holding and receiving areas, archive spaces, administrative offices and seminar rooms are all visible through the object-filled glass cases. The richly textured, dark terracotta cladding of the central volume reinforces its key role in the program and composition. The western wing of the museum, clad in custom-designed undulating reconstructed stone blocks, houses a 6,200 square foot exhibit gallery which can be reconfigured to support student-curated shows. The building also includes a 48-seat lecture hall with state of the art multimedia equipment and a lounge as well as workshops and back of house spaces to support the ambitious teaching mission of the museum. The project is designed to meet the stringent temperature and humidity requirements of an archival museum. The museum draws its heating and cooling from a closed loop geothermal well field that has been placed beneath the sculpture terrace. Occupancy sensors, a high performance building envelope and other energy efficient systems are used to meet the College’s sustainability goals.

Upcoming Events

  • Design Smarter: Leveraging GIS, BIM, and Open Data for Better Site Selection & Collaboration

    Live Webinar

    Register for Free
  • Slate Reimagined: The Surprising Advantages of Slate Rainscreen Cladding

    Webinar

    Register Now
  • The State of Residential Design Today: Innovations and Insights from RADA-Winning Architects

    Webinar

    Register for Free
All Events