Weekend House on Lake Superior

Project Details

Project Name
Weekend House on Lake Superior
Shared By
Xululabs
Project Status
Built
Size
1,280 ft²

Project Description

Text by

2011 RADA
Custom / 3,000 Square Feet Or Less / Merit

This weekend home in Minnesota exhibits an intimate knowledge of its forested surroundings. “They know the environment they’re working in,” said one judge. Its architect, Julie Snow, FAIA, owns the house with her husband, a mechanical engineer. She designed the building to rest on a platform, so as not to disturb the site’s natural water runoff patterns. Inside and out, it’s supremely uncluttered, the better to highlight Lake Superior views. “It’s designed to be about being in that place in the summer, winter, fall, and spring,” Snow notes. “But winter is pretty spectacular.”


Text by Sara Hart

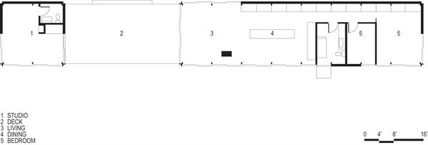
Julie Snow Architects • On the north shoreline of Lake Superior, Weekend House is a quiet retreat for its owners. The owners—the architect and her husband—studied the site for years before deciding to build and their respectful relationship with the lake helped them imagine a home that would tread lightly on the pristine four-acre site, populated by spruce and birch trees along 240 feet of shoreline. The architect responded with a “stealthy” design, placing the 1,300-square-foot, one-story dwelling 40 feet back from the shore. Two black-framed glass structures contain the main house and a small studio, which are separated by an open deck. A single heat-circulating fireplace emerges from the living room.

The jurors were nearly unanimous in their praise of the aesthetics of “the chill house,” as they called it. They all thought it beautiful, and that “[the details] are so refined,” as juror John Cary said. It’s evident that the architects focused on material selection. The exterior panels are made of back-ventilated pre-drilled Skatelite, a material typically used for skateboard ramps, that was chosen for its color and durability. Narrow argon-filled aluminum windows are supported on a steel ledge, allowing the sill and head to extend below the floor and above the ceiling, to enhance an uninterrupted connection to the exterior. The glazing details and the siting combine to make views of the lake and surrounding landscape an immediate panoramic experience. The black post-and-beam boxes rest lightly in the winter landscape of black and white tree trunks, while in the summer, they fade into the green foliage.

Weekend House is a stellar architectural interpretation of the ancient maxim, “First, do no harm.” In addition to its super-insulated floors, walls, and roof, the entire complex rests on a black platform raised just above the ground. The platform sits on wood piers, leaving a footprint measuring only 12 by 16 feet for mechanical equipment and storage. This allows critical runoff from the adjacent Sawtooth Mountains to continue to flow directly into the lake with minimal disturbance.

FROM THE ARCHITECTS:

The weekend house on Lake Superior is reduced to a few essential elements. The main house and a small studio sit on a black terrace framing the water of Lake Superior. A long simple white table runs parallel to the lake. A narrow vertical tower encloses the fireplace. Cabinets conceal the complexities of daily life. The house provides a serene connection to a beautiful, rugged landscape. The site occupies the North Shore’s highland moraine. Patches of wetland filter the water runoff. The house minimizes its disturbance of natural water movement and employs passive heating and cooling strategies reducing BTU consumption per square foot by 47%.

Upcoming Events

  • Design Smarter: Leveraging GIS, BIM, and Open Data for Better Site Selection & Collaboration

    Live Webinar

    Register for Free
  • Slate Reimagined: The Surprising Advantages of Slate Rainscreen Cladding

    Webinar

    Register Now
  • The State of Residential Design Today: Innovations and Insights from RADA-Winning Architects

    Webinar

    Register for Free
All Events