Water Mill House

Project Details

Project Name
Water Mill House
Location
Water MillNY
Project Types
Single Family
Project Status
Built
Year Completed
2015
Size
4,000 ft²

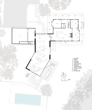
Project Description

We expanded a traditional shingled cottage home by marrying a new addition and a renovation project together. We re-oriented the house to the garden, an existing swimming pool, and the bucolic views of the neighboring farm in order to reinforce the relationships between outdoor activities and the surrounding landscape. The living area, dining area and kitchen were moved from the old cottage into the new addition to establish clear connections to the garden and pool. The addition creates a new main entrance to the house, drawing guests directly into the most socially vibrant part of the home. The first floor of the cottage (originally containing the living/dining room, kitchen, two bedrooms and two bathrooms) was renovated and converted into a family room, home office and guest bedroom suite. The upper floor was renovated to provide larger bedrooms, a shared bathroom, and a sitting area that overlooks the neighboring farm. Our concept for the addition included a bold interpretation of vernacular forms and materials. The new addition offers an expressive counterpoint to the old cottage; its form is defined by a powerful, undulating, vaulted ceiling of structural framing that celebrates the living areas. While this roof form provides a dramatic counterpoint to the other spaces in the house, it still complements the traditional language of the original cottage. The architectural language of the original cottage was refined and simplified with a new palette of details and lighting concepts to enhance the flow of light and space. The clients are thrilled with the overall design and also the fact that the renovation/addition approach reduced their construction time frame, kept costs down, and met their sustainability goals of reducing demolition waste.

Upcoming Events

  • Design Smarter: Leveraging GIS, BIM, and Open Data for Better Site Selection & Collaboration

    Live Webinar

    Register for Free
  • Slate Reimagined: The Surprising Advantages of Slate Rainscreen Cladding

    Webinar

    Register Now
  • The State of Residential Design Today: Innovations and Insights from RADA-Winning Architects

    Webinar

    Register for Free
All Events