Walk-Street House

Project Details

Project Name
Walk-Street House
Location
Hermosa BeachCA
Architect
RAS-A Studio
Project Types
Single Family
Project Scope
New Construction
Shared By
Madeleine D’Angelo
Project Status
Built
Size
2,110 ft²

Project Description

This project was selected as a winner in the 2019 Residential Architect Design Awards
Custom Home / 3,000 Square Feet or Less, Honorable Mention

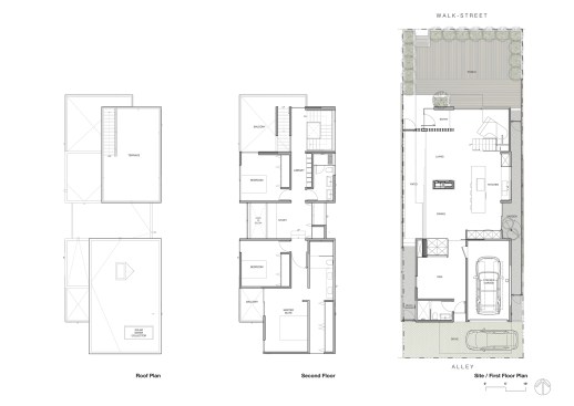
Designed by Redondo Beach, Calif.–based RAS-A Studio, the two-story, 2,110-square-foot Walk-Street House draws its name from its location fronting a pedestrian-only street in Hermosa Beach. To limit the incursion of the automobile further, the designers incorporated a two-car “stacker” mechanical parking lift in the garage to the rear of the property, halving the footprint necessary to meet the community’s requirement for a two-car garage.

The pedestrian street is effectively a shared front yard with neighbors, just two blocks from the Pacific Ocean. Floor-to-ceiling glazing marks much of the first floor; the glass is punctuated by western red cedar siding that’s deployed both inside and out in several configurations: horizontal, vertical, and slatted. An open plan makes the most of the house’s tight 30-foot-by-70-foot lot. Entry is separated from the primary living spaces by a white concrete-block feature wall using standard masonry units laid on their side—turning their hollow cores into a perforated screen. A single space punctuated by a central fireplace accommodates living, kitchen, and dining areas, and a 27-foot-long glass door effectively expands these spaces into the 6½-foot-deep side yard. The second floor comprises three bedrooms, including a master suite that cantilevers over the drive at the rear of the house. The corridor incorporates a library as well as a small study that’s open to the dining room below. A deck at the front includes an outdoor stair to the roof terrace.

Walk-Street House’s free plan and small footprint, combined with large openings that enhance natural ventilation, provides quintessential Southern California living, while de-emphasizing the role of the car in a nod to a shared 21st-century future.

Project Credits
Location: Hermosa Beach, Calif.
Client: Mardi and Anton Watts
Architect: RAS-A Studio, Redondo Beach, Calif. . Robert Sweet (lead principal); Paul Miller, AIA (project architect)
Structural Engineer: McCullum Engineering
General Contractor: RAS-A Build
Landscape Designer: Jones Landscapes
Size: 2,110 square feet
Cost: Withheld

Materials and Sources
Appliances: Miele
Bathroom Fixtures: Hansgrohe; Axor; Duravit
Cabinets: Custom (white oak, 13-ply with laminate fronts)
Ceilings: Western red cedar
Concrete: Polished slab on grade
Countertops: Neolith (porcelain slab in kitchen); Corian (master bath)
Kitchen Fixtures: Kohler
Lighting: Halo; Artemide
Masonry/Stone: Ann Sacks (porcelain tile); Cle Tile (encaustic tile)
Paints/Finishes: Sherwin Williams (Cashmere interior paint)
Photovoltaics/Other Renewables: Solar hot water collector
Wallcoverings: Western red cedar (interior and exterior siding)
Windows/Doors: Fleetwood Windows & Doors

FROM THE ARCHITECTS:

Context Located two blocks from the Pacific Ocean in Hermosa Beach, this single-family residence is in one of the safest and most sought after cities in Los Angeles. The property is a new build on a pedestrian-only street, where a tight-knit neighborhood shares the block as if it were one big front yard. Program The challenge of this site is tied to its biggest draw: The home is located near the beach, but confined to a tight lot that’s typical of its prime location. The owners wanted an open concept on the ground floor that led seamlessly to natural grade, but zoning mandated a large two-car garage that would otherwise force the living spaces of the small footprint to be split between multiple levels. Solution A mechanical parking lift, the first of its kind used to meet Hermosa’s parking standards, was installed to fit two cars on the footprint of one. This freed up enough room to allow the program’s living spaces all to fit on the ground floor. An on grade ipe deck forms a generous front porch. It doubles as an outdoor rec room where the family can hang out, play ping pong, and socialize with their fellow neighbors. White concrete masonry blocks turned on their side to expose their core, form an entry wall that screens the interior living areas from the front porch. A 27 foot long pocket sliding door opens the living, dining, and kitchen to a patio running the length of the lot and allows the interior to borrow six and a half feet from the required side yard, making the modest sized footprint live larger than its square footage. A walk-street facing balcony, with access to a private roof terrace, bring the outdoor connection to the the second floor where the bedrooms and study are located. Given the ready availability of ocean breeze and the abundance of operable doors and windows the home makes use of passive cooling that eliminates the need for an air- conditioning system. For warmth, in-floor hydronic radiant heating is installed throughout. A solar water collector on the south roof provides the domestic hot water and supplements the boiler for the in-floor radiant system. The exterior consists entirely of western red cedar, but milled in various profiles to create contrast and texture. The interior ground floor is polished concrete, which blurs into the side- yard patio. The second floor and stairs are white oak. The cedar continues on the interior ceilings and a couple of accent walls. Bamboo and drought tolerant plants provide privacy and color, while gravel ground cover and a turf-block driveway allow rain water to percolate into the water table. A detention basin is implemented under the driveway to manage excessive stormwater.

Project Credits:
Project: Walk-Street House
Architect: RAS-A Studio, Redondo Beach, Calif. . Robert Sweet (lead principal); Paul Miller, AIA (project architect)
Structural Engineer: McCullum Engineering
General Contractor: RAS-A Build
Landscape Designer: Jones Landscapes

Upcoming Events

  • Design Smarter: Leveraging GIS, BIM, and Open Data for Better Site Selection & Collaboration

    Live Webinar

    Register for Free
  • Slate Reimagined: The Surprising Advantages of Slate Rainscreen Cladding

    Webinar

    Register Now
  • The State of Residential Design Today: Innovations and Insights from RADA-Winning Architects

    Webinar

    Register for Free
All Events