Waffle

Project Details

Project Name
Waffle
Project Types
Shared By
dmadsen
Project Status
On the Boards/In Progress
Size
5,682 ft²

Project Description

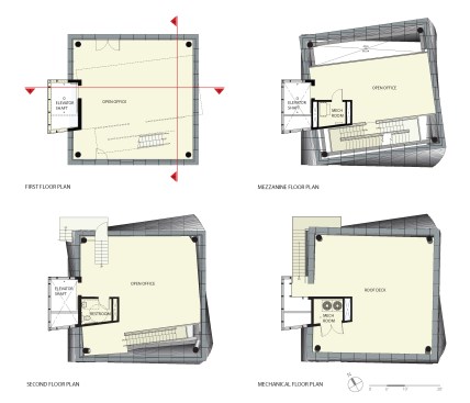
Eric Owen Moss’s latest project in the Hayden Tract district of Culver City, Calif., is set to begin construction before the end of the year. Sited at Foundation Content—a Chicago-based media, production, and graphic design company—Waffle will provide flexible spaces to be used for meeting rooms, a gallery, or possibly a café. The new 55-foot, three-story structure responds to the airy Cactus Tower, another Eric Owen Moss project on the same site, which transformed the remnants of an old industrial press into an outdoor gathering area.
The Waffle—so named for its exterior surfaces—has a gridlike exoskeleton that gets denser around areas of curvature. The grid is formed out of egg-crated crossed steel plates that also serve as brise-soleil, which are supported by 18-inch diameter pipes that bend to accommodate the twisting form of the structure. Inside the steel plate grid, double-glazed panels provide a weather barrier; this hybrid curtain wall hangs from a mechanical deck. The façade uses dense networks of straight steel sections to curve gently around the pavilion’s structural steel as the form rotates upward from its 33-foot by 33-foot base.
The team used Digital Project (CATIA—based software from Gehry Technologies) to design the Waffle’s complex geometries, and realize the individual pieces for assembly, which will be prefabricated off-site. “We have every single piece. It’s very clear – we can sit with a contractor and go through it organizationally,” Moss says. “You can see it in a tangible way—it’s very encouraging.”
ARCHITECT will follow Waffle’s progress by posting updates to the construction photos.

Upcoming Events

  • Design Smarter: Leveraging GIS, BIM, and Open Data for Better Site Selection & Collaboration

    Live Webinar

    Register for Free
  • Slate Reimagined: The Surprising Advantages of Slate Rainscreen Cladding

    Webinar

    Register Now
  • The State of Residential Design Today: Innovations and Insights from RADA-Winning Architects

    Webinar

    Register for Free
All Events