Visible Music College – Student Studios

Project Details

Project Name
Visible Music College – Student Studios
Location
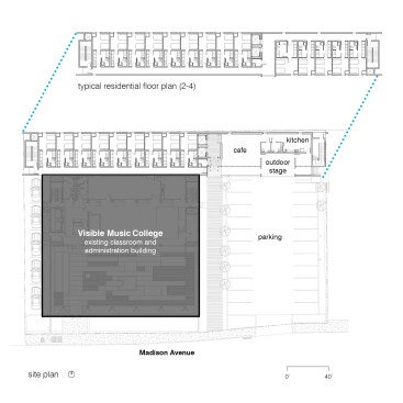
200 Madison AvenueMemphisTN38103
Architect
Archimania
Project Types
Project Scope
New Construction
Shared By
archimania
Project Status
Built
Year Completed
2017
Size
26,000 ft²

Project Description

Student Studios appeal to both students and non-students alike, and are progressive in two ways: they may be converted from two students to one non-student, and are almost 10 percent smaller than the national space norm. The space standard for student housing nationally is currently 350 square feet per student, including all square feet associated with a building; a Student Studio consists of only 288 square feet.

Each Student Studio has high ceilings to create a feeling of spaciousness, a Juliette balcony with an oversized operable window that engages the city, dual closets, a kitchen with full height cabinets and fold-out counter, a full bath with shower, and storage space above the core of 60 square feet. The unit is three-fourths the size of a two-car garage, yet it feels substantially roomier than traditional dormitory rooms. Modern design affirms that you don’t need much space if it is designed well.

Each unit is divided into ‘Life’ and ‘Care’ elements. The Life element supports living, studying, sleeping and eating. The Care element supports cleaning and storage. The perception of space within the Student Studios is substantially larger than the construction square footage and provides opportunities for two students to enjoy both private and shared space.

Upcoming Events

  • Design Smarter: Leveraging GIS, BIM, and Open Data for Better Site Selection & Collaboration

    Live Webinar

    Register for Free
  • Slate Reimagined: The Surprising Advantages of Slate Rainscreen Cladding

    Webinar

    Register Now
  • The State of Residential Design Today: Innovations and Insights from RADA-Winning Architects

    Webinar

    Register for Free
All Events