Village

Project Details

Project Name
Village
Project Types
Multifamily
Project Scope
New Construction
Shared By
Victoria Carodine
Project Status
On the Boards/In Progress
Size
62,650 ft²

Project Description

Winner of a citation in the 2017 P/A Awards

“I like the idea of having an urban form, and I’m interested in housing
and how we can get cities to accept their densification laterally.
This is a solution that creates a lot more density in a very interesting way.”
— juror Barbara Bestor, AIA

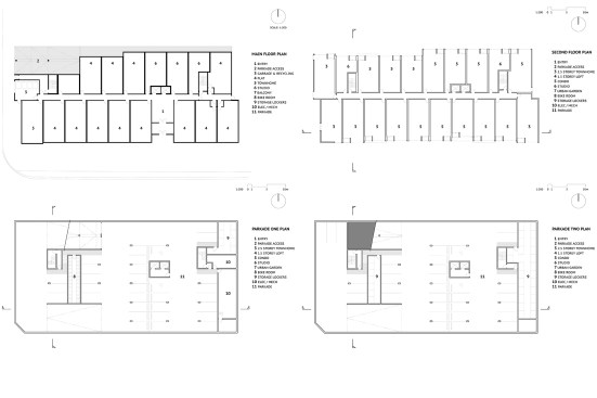
Situated in Calgary’s Bankview neighborhood, southwest of downtown, Village is in some ways a typical urban housing development, with 78 units ranging in size from 475-square-foot studios to 1,100-square-foot townhomes. The difference, though, is that where most designers would put the townhomes on the first few floors, local firm Modern Office of Design + Architecture (MoDA) inverted that order, placing the studios and smaller units on the lower floors, and the two- and three-bedroom townhomes on top. The result of what MoDA calls “modulating density,” an arrangement that puts more people closer to the ground and the surrounding neighborhood, at more affordable prices, while providing additional privacy and oversized patios for the townhome residents above. This is a particularly attractive feature in a city where many suburban residents are still not used to the idea of multistory, multifamily living. The patios are arranged to flow from one to the next, replicating, on a smaller scale, the suburban backyard. At the same time, the smaller units at street level reduce the scale of the building, which sits at a busy intersection; the exteriors of the studios are black and the townhomes white, so that passersby can “read” the order of the units. Village also has just 58 parking spots, lowering the unit price-point and encouraging many residents to go without a car, either by walking or using public transportation. The 62,000-square-foot project, which is still in its conceptual stages, will include about 30 different residential layouts.

Project Credits
Project: Village, Calgary, Alberta
Client: Renata Development
Architect: Modern Office of Design + Architecture, Calgary, Alberta . Ben Klumper and Dustin Couzens, with Nicholas Tam, John Ferguson, Anthony Schmidt, and Cara Tretiak
Developer: RNDSQR Construction
Manager: BMP Construction Management
Renderings: Turbulentarch
Size: 62,650 square feet
Cost: Withheld

Upcoming Events

  • Design Smarter: Leveraging GIS, BIM, and Open Data for Better Site Selection & Collaboration

    Live Webinar

    Register for Free
  • Slate Reimagined: The Surprising Advantages of Slate Rainscreen Cladding

    Webinar

    Register Now
  • The State of Residential Design Today: Innovations and Insights from RADA-Winning Architects

    Webinar

    Register for Free
All Events