Village Health Works Staff Housing

Project Details

Project Name
Village Health Works Staff Housing
Location
KigutuBurundi
Project Types
Multifamily
Project Scope
New Construction
Shared By
Louise Braverman
Project Status
Built
Size
6,000 ft²
Room or Space

Project Description

This project won a 2016 AIA Small Projects Award. Village Health Works also won an Honorable Mention in ARCHITECT‘s 2014 Annual Design Review; the article below originally appeared in the December 2014 issue of ARCHITECT.

Text by Katie Gerfen

Category: Live
Honorable Mention
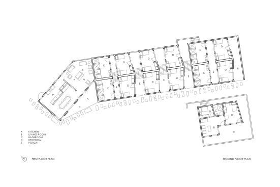
Located in the 40-acre village of Kigutu, a 2.5-hour drive from Burundi’s capital, is Village Health Works—an organization founded by a native Burundian as a New York– and Burundi-based nonprofit that provides healthcare for the surrounding communities. Designed by New York’s Louise Braverman, Architect, the 6,000-square-foot, 18-bed staff dormitory takes its inspiration from the local vernacular. The concrete structure is infilled with locally made bricks, and features deep porches that nod to the indoor/outdoor communal living spaces of the region and promote community engagement. Kigutu is entirely off the grid, and a solar array and solar hot water heaters located at the rear of the structure provide all power. Dug into the hillside as it is, the brightly colored dormitory takes advantage of the insulating land mass for natural cooling.

See all of the winners of ARCHITECT’s 2014 Annual Design Review here.

Upcoming Events

  • Design Smarter: Leveraging GIS, BIM, and Open Data for Better Site Selection & Collaboration

    Live Webinar

    Register for Free
  • Slate Reimagined: The Surprising Advantages of Slate Rainscreen Cladding

    Webinar

    Register Now
  • The State of Residential Design Today: Innovations and Insights from RADA-Winning Architects

    Webinar

    Register for Free
All Events