Villa Tugendhat

Project Details

Project Name
Villa Tugendhat
Project Types
Multifamily
Project Scope
Preservation/Restoration
Shared By
Suren
Project Status
Built
Size
27,986 ft²

Project Description

Historic Preservation
Miesian Revival
The Restoration Of Ludwig Mies van der Rohe’s 1930 Villa Tugendhat In The Czech Republic Brings The House Back To Its Former Glory, But The Price Is Hollow Authenticity.

After a top-to-bottom, $9.2 million restoration, the 1930, Ludwig Mies van der Rohe–designed Tugendhat House in Brno, Czech Republic, has joined the list of modern homes—ranging from Gerrit Rietveld’s 1924 Schröder House in Utrecht, the Netherlands, to Le Corbusier’s 1930 Villa Savoye in Poissy, France, to Philip Johnson’s 1949 Glass House in New Canaan, Conn.—that now look exactly the way they may have appeared when the owners first moved in. Take a guided tour through any of these museums (the only way to see them), and you can get a full sense of the architects’ intentions. You might even understand why these houses were so influential in the development and spread of Modernism. The price for this achievement is the fact that what you see, certainly in the case of the Tugendhat House, is to a large extent a re-creation. You wander through rooms filled with replacement wall coverings, glass windows, wood and stone walls, and furniture while wearing protective slippers. No longer living places, these houses are now monuments that contradict the purpose that led them to be built in the first place.

The Tugendhat House was a home for less than eight years. Commissioned by Fritz and Grete Tugendhat—scions of two Jewish textile manufacturing families—for a hillside that was part of her parents’ estate, the house accommodated the couple, their three small children, and their particular enthusiasms (there was a darkroom for Fritz) and needs (the house sported an advanced central air conditioning plant because Grete had asthma). When Germany invaded in 1938, the Tugendhats left for Switzerland and eventually Venezuela. The building was taken over by the Gestapo, who did not use it kindly. Worse, according to historical reports, was the Russian cavalry regiment that bivouacked there with their horses after the war. The house then became a rehabilitation center for children with spine defects before the City of Brno took it over in 1980 and authorized a restoration that, though it stabilized the structure and repaired water damage, also altered much of the original design. Finally, the Czech government found the funds (mainly through grants from the European Union) to complete a thorough and scientifically grounded restoration to UNESCO standards, overseen by Marek and Vítek Tichý of design firm Omnia Projekt in Brno.

Omnia had to strip the house almost to its foundations, which they then reinforced and sealed. They repaired or replaced almost every bit of mechanical equipment, as well as the roof, ceiling, walls, and floor surfaces, and even the sewage line. They ripped out the 1985 renovation–era terrazzo tiles and replaced them with ones that match the originals, of which there were still pieces in the house (you can buy fragments of them as souvenirs in the on-site gift shop). They replaced the glass, including the enormous, 3-meter-by-6-meter (9.8-foot-by-19.6-foot) floor-to-ceiling pane fronting the living room, which moves down into the lower floor at the flip of a switch. Every light fixture as well as every light switch now matches photographs of the original. The same is true of the levers and handles for the clerestories in the bathrooms. Finally, Omnia commissioned or bought reproduction furniture, including a blue version of the MR20 and a green Barcelona chair, whose colors it based on original records (the Brno chairs, designed for the house, are in plain white).

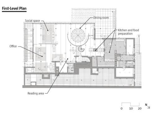
The results are startling, though not always in ways that are appealing. After you have reacquainted yourself with the spatial development of the main floor—which is essentially a spiral that uncoils from the back drawing room area, through the conservatory, past the onyx living room wall and the floor-to-ceiling glass wall that opens the house up to the view over the garden and Brno, and then into the dining table sheltered by the Macassar curve—what stands out are exactly those details. The fetishistic attention to the cross-shaped columns will be familiar to anyone who has studied modernist architecture, though it is breathtaking to watch these cruciform lines march through the open spaces, changing in material from bronze to chrome and finally to white paint in the kitchen. What jumps out are all the end points of the mechanical and structural systems that make this open space possible, and then the extension of those systems into metal, wood, and fabric furniture that cradle the body. The house appears as a technological web that wove together the activities of everyday life as they flowed in freedom through conditioned space. This was a version of Modernism that humanized and idealized technology, and as such became a utopian statement on how human ingenuity can liberate us.

Except that now you experience merely the remnants of that life and of that dream. You have to imagine how you might live in here, and how the accoutrements of daily existence would fit into that abstract web. You have to listen to the tour guide as he tries to re-create a lost world, or gaze at it in the photographs laid out in the visitors center in the basement, where you wind up after your proscribed hour in the house, passing, of course, the gift store on your way out to reality. Local architectural historian Ladislav Zikmund-Lender, who has worked at several museum houses and now for the Czech preservation agency, put it this way: “The Tugendhat looks like new, because most of the materials and furniture are new copies. The architects want it to look like the Tugendhats have just left the house—with flower arrangements on the new furniture even. But the wardrobes are empty, there are no personal things. The personal experience is irreplaceable. Personally, for me the experience of the space and Mies van der Rohe’s concept was much more ravishing before the renovation.”

So should the Tugendhat House have remained a ruin? Certainly not. Should it have a different use, perhaps a cultural one that would let it transform into another form of architecture, with a different message and furnishings, as well as a new life? Perhaps. Certainly it is valuable to see what van der Rohe and collaborator Lilly Reich believed architecture could do. But we have to realize that what we are seeing is only a collection of remains woven together into a picture-perfect facsimile.

Upcoming Events

  • Design Smarter: Leveraging GIS, BIM, and Open Data for Better Site Selection & Collaboration

    Live Webinar

    Register for Free
  • Slate Reimagined: The Surprising Advantages of Slate Rainscreen Cladding

    Webinar

    Register Now
  • The State of Residential Design Today: Innovations and Insights from RADA-Winning Architects

    Webinar

    Register for Free
All Events