Villa near Potsdam

Project Details

Project Name
Villa near Potsdam
Location
WilhelmshorstPotsdamGERMANY14557
Project Types
Single Family
Project Scope
New Construction
Shared By
Esenija Bannan
Project Status
Built
Year Completed
2015
Style
Modern
Team
Architect: Sergei Tchoban
Project partner and project leader: : Philipp Bauer
Team:: Priska-Magdalena Schwalke, Katja Fuks, Anja Koch
Landscape Architect:: Henningsen Landschaftsarchitekten BDLA
Structural engineering: : Papenfuss & Piechottka
Building equipment: : BLS Energieplan
Photographer:: Martin Tervoort

Project Description

Private Residence surrounded by pine forest

This spacious private residence is located on a small clearing on the backside of the elongated estate in Wilhelmshorst near Potsdam. The quiet location and a big stock of preserved trees define the surrounding of the place. The flat roof and spatially pleasant terrace on the upper floor accentuate the outer appearance of the two-story building. On the south side the wide cantilever creates a framed areaway, which can be used for multiple purposes and visually resembles a passé partout. The overlapping of both floors lies only by 70 m2. A flat, cube-shaped two-car garage is located in the front area of the property.
The context of the surrounded buildings continues to appear on the structure of the villa including red brick as well as silver elements on the upper floor. Even to the ground, the massive base has been covered with red brick and on the south side his facade is covered with wide glass panes. The upper floor is storey-high glazed and offers the residents an unrestricted view of the forest and the garden with its old and new stock of trees.
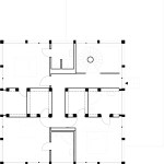
The ground floor accommodates living and dining room, kitchen, study, wardrobe, guest bathroom and utility room. A fireplace completes this homely atmosphere. The upper floor comprises three bedrooms, each with its own private bathroom and a closet. A staircase leads to the almost 90 m2 terrace. Spa and fitness area are located on the ground floor. The spiral staircase is wrapped around as it defines a continuity of interior spaces and the patio and flows between the floors through the high spaces as a binding element. Further emphasized and expressed is the interior design, which is light and rather reserved focusing only on striking details.

Upcoming Events

  • Design Smarter: Leveraging GIS, BIM, and Open Data for Better Site Selection & Collaboration

    Live Webinar

    Register for Free
  • Slate Reimagined: The Surprising Advantages of Slate Rainscreen Cladding

    Webinar

    Register Now
  • The State of Residential Design Today: Innovations and Insights from RADA-Winning Architects

    Webinar

    Register for Free
All Events