Villa N

Project Details

Project Name
Villa N
Location
Via AretinaArezzoTuscanyITALY52025
Project Types
Single Family
Project Scope
New Construction
Shared By
ARCHITETTURA MATASSONI
Project Status
Built
Year Completed
2015
Style
Modern
Certifications & Designations
Other

Project Description

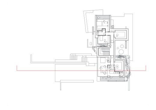
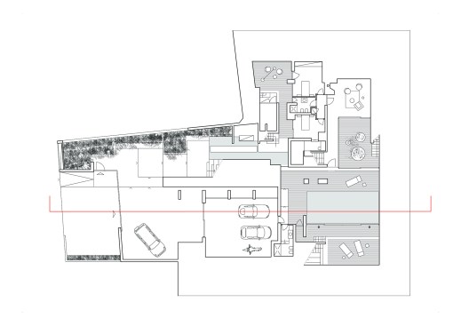
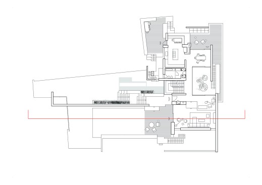
We organized the unit around a patio with the function of central court at the edge of which the home’s life takes place; this compositional logic allows a certain visual reciprocity between the environments with many possible views and deep optical axes.
The living area and the kitchen-dining area are in direct contact each other and with the outside spaces by means of a remarkable visual permeability, partially filtered, from the leafs of bamboo plants settled in the center of the patio.
The centrality of this space is partly contradicted by the perimetral openings emphasized by the centrifugal projection of some architectural elements stretched until to the extreme edges of the available area (a surface very limited compared to the allowed volume).
The sleeping area on the first floor has an attitude much more private with an atmospheric connotation due to its sensitivity to natural light changes and the direct contact with the sky through the linear slots cutted in the roof.
The expressive language of this architecture was affected by the preference of the customer for the ninety degrees angles and the flat surfaces, which has prompted designers to get past the consequent static nature through the strategic dislocation of the volumes and the use of suspended masses and shifted surfaces.
During the construction, other client’s choices have pushed decisively towards the total white option and towards the simplification of the materials used, which have been reduced to plaster for all vertical surfaces in combination with metal panels and stone slabs, combined with floating wooden surfaces, for the external floorings.
From the point of view of energy, the purely technological solutions have been reduced as much as possible using low-tech solutions, when possible, which could ensure the internal microclimate control in a passive manner through the natural flow of fresh air from the green external areas.

Upcoming Events

  • Design Smarter: Leveraging GIS, BIM, and Open Data for Better Site Selection & Collaboration

    Live Webinar

    Register for Free
  • Slate Reimagined: The Surprising Advantages of Slate Rainscreen Cladding

    Webinar

    Register Now
  • The State of Residential Design Today: Innovations and Insights from RADA-Winning Architects

    Webinar

    Register for Free
All Events