Via Verde—The Green Way

Project Details

Project Name
Via Verde—The Green Way
Project Types
Affordable Housing
Project Scope
New Construction
Shared By
mkrochmal
Project Status
Built
Year Completed
2013
Certifications & Designations
LEED Gold

Project Description

Multifamily / Grand
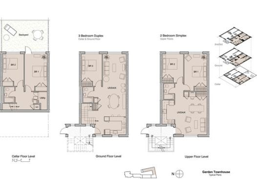
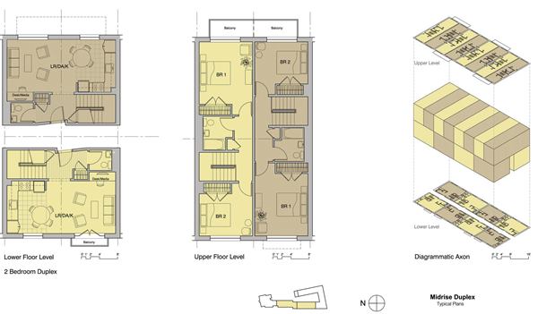
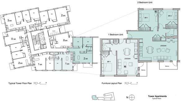
Located on a brownfield site in the South Bronx, N.Y., Via Verde bested more than 30 rival proposals in a sustainable public housing design competition sponsored by the AIA New York Chapter and the New York City Department of Housing Preservation and Development. “In some ways, it was a challenging site, because it’s so long and narrow,” says Dattner’s William Stein, FAIA. He and his design team responded with a long, narrow structure that folds like a paper clip. “The project is organized around a central courtyard, with green roofs stepping up from there,” Stein says.

The stepped building shell presents south-facing mounting surfaces for photovoltaic panels, which generate enough electricity to supply the common areas and outside lighting. To promote daylighting and natural ventilation and minimize air conditioning use, most of the 222 units have two exposures, and all have operable windows. An energy-efficient shell, mechanical systems, and lighting—plus rainwater collection and other sustainable features—earned the building a LEED Gold certification. “But we were also interested in social sustainability,” says Stein, who notes that the development’s 40,000 square feet of open space includes vegetable gardens, the courtyard’s playground and amphitheater, and other community gathering places.

The jury admired the “huge project with all this landscape and social space,” praising in particular the building’s many green features and “dynamic façades.” One juror remarked that “the engagement is infectious. I feel like people will grow to love this place.” —Bruce Snider

Upcoming Events

  • Future Place

    Irving, TX

    Register Now
  • Archtober Festival: Shared Spaces

    New York City, NY

    Register Now
  • Snag early-bird pricing to Multifamily Executive Conference

    Newport Beach, CA

    Register Now
All Events