REGIONAL LIBRARY

Project Details

Project Name
REGIONAL LIBRARY
Location
VarnaBULGARIA
Project Types
Cultural
Project Scope
New Construction
Shared By
Yannick Troubat
Project Status
Concept Proposal
Year Completed
2015
Style
Modern

Project Description

The Varna Regional Library brings together in one place reading materials now scattered in multiple locations and should demonstrate contemporary attitude to books and have one major message: “We are a modern, open and friendly institution. Come to spend your free time with us”, said the competition brief.

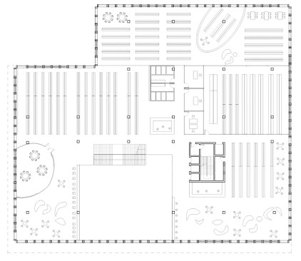
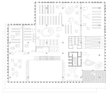
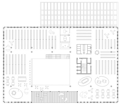
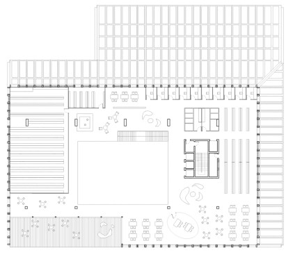
Presently, the competition area is covered with lush greenery, and combines the functions of a park with those of an open-air parking lot for the needs of the Municipality Hall. The new library sets back from the street to create an entirely new public space in the city that reconnects the surrounding network of public space. This piazza accomodates a wide range of urban uses from daily life to special events.

The main lobby of the new library acts as a full extension of the front piazza. This indoor urban space is animated by services, information, auditorium and events. At the same time it provides a full overview and a clear understanding of library spaces.

The library facilitates the orientation of the user as well as the operating process thanks to a three-partition section. The main storage facility and administration area are located at the half of the building eight and divides the library in two parts : a busy area in the lower part of the buiding and a quite area in the highest levels. The busy area is easily accessible form the piazza and dedicated to the entrance, children and teenagers reading areas as well as the art and media center. The quiete area is dedicated to adults and specialized reading areas, American corner and Deutsche Lesesaal, providing the best conditions for research and focused activites.

The compact and irregular shape of the building allows for efficient working process of all library activities, distinct architectural identity and successfull integration of this metropolitan facility within neighboring urban fabric.

The concept of the envelope of the new library lies in the dual intention of designing a sculptural mass that meets urban openness and various requests for interior lighting applications according to the program. The use of light diffusing insulating glass makes possible to graduated the façade from full transparency to total opacity while ensuring homogeneus perception of the building. Allowing optimum and uniform light transmittance into the rooms this cladding also achives very good colour rendering, solar energy transmittance as well as very good sound and heat insulation for readers comfort.

Upcoming Events

  • Design Smarter: Leveraging GIS, BIM, and Open Data for Better Site Selection & Collaboration

    Live Webinar

    Register for Free
  • Slate Reimagined: The Surprising Advantages of Slate Rainscreen Cladding

    Webinar

    Register Now
  • The State of Residential Design Today: Innovations and Insights from RADA-Winning Architects

    Webinar

    Register for Free
All Events