Valley Rock Guesthouse

Project Details

Project Name
Valley Rock Guesthouse
Location
SonomaCalifornia
Project Types
Project Scope
New Construction
Shared By
Madeleine D’Angelo
Project Status
Built
Year Completed
2021
Size
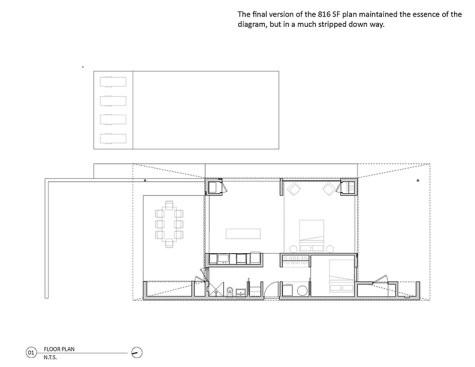
816 ft²

Project Description

This project was selected as an Honor winner in the 2021 Residential Architect Design Awards, Custom House Less Than 3,000 Square Feet category.

“This is a poetry piece—the essence of house, a pure expression of walls and roof that transcends into sculpture.” —Juror Kimberly Sheppard, FAIA

Designed by San Francisco–based firm Schwartz and Architecture, the Valley Rock Guesthouse is an exercise in impeccable taste and structural economy that provides accommodations for visitors to an estate in the Sonoma Valley. The project brief called for no more than a bedroom, bathroom, galley kitchen, and covered outdoor dining area on a site with sweeping views across the landscape.

The designers responded with an engineering concept that maximizes the views, minimalizes the 816-square-foot building’s material presence, and conveys a strong sense of shelter. Anchored to a rear service core, with only slender pilotis at its corners, a semicantilevered roof (braced by an invisible truss system) launches over the mostly glazed-in space, making the house a sophisticated lean-to. Schwartz’s design also gives the house a particular thematic connection to its natural, rugged locale with the jagged lozenge-like roofline finished in, as with most of the exterior, an ash gray–black that recalls the lumps of hardened volcanic stone that can be found in the region. Light-wood interior finishes and minimal furnishings, not to mention a stunning concrete-lined swimming pool, complete the picture of serene refinement.

PROJECT CREDITS:
Project: Valley Rock Guest House, Sonoma County, Calif.
Architects: S^A | Schwartz and Architecture, San Francisco. Neal J.Z. Schwartz, FAIA (founder + principal),
Christopher Wayne Baile (associate principal), Ania Burlinska (senior designer)
Architect of Record: S^A | Schwartz and Architecture
Structural Engineer: Framework Engineering
Civil Engineer: Bear Flag Engineering
Geotechnical Engineer: PJC & Associates
General Contractor: Eames Construction
Landscape Contractor: Totem Landscape Services
Lighting Designer: S^A | Schwartz and Architecture
Size: 816 square feet

Materials and Sources:
Appliances: Kitchen – Bosch https://www.bosch-home.com/us/
HVAC: Split-ductless, Mitsubishi https://www.mitsubishicomfort.com/
Millwork: Maple veneer paneling – Appleply https://www.buyappleply.com/
Paints/Finishes: Tile – Fireclay https://www.fireclaytile.com/
Roofing: Standing Seam Metal – Metal Sales https://www.metalsales.us.com/
Structural System: Prefabricated Roof Truss – All Truss Inc. http://alltrussinc.com/
Windows/Curtainwalls/Doors: Nanawall https://www.nanawall.com/ , Fleetwood http://www1.fleetwoodusa.com/?gclid=Cj0KCQiAsqOMBhDFARIsAFBTN3dvvYCeopDAVmQdYaV6_aIcKYOmLD9hgT_3If283A0nPyxMB9RU1HUaApcOEALw_wcB

Upcoming Events

  • Design Smarter: Leveraging GIS, BIM, and Open Data for Better Site Selection & Collaboration

    Live Webinar

    Register for Free
  • Slate Reimagined: The Surprising Advantages of Slate Rainscreen Cladding

    Webinar

    Register Now
  • The State of Residential Design Today: Innovations and Insights from RADA-Winning Architects

    Webinar

    Register for Free
All Events