USC Horizon I Research Facility

Project Details

Project Name
USC Horizon I Research Facility
Location
Corner of Main St. and Pickens St.ColumbiaSCUnited States
Architect
Watson Tate Savory
Project Scope
New Construction
Shared By
tsavory
Project Status
Built
Year Completed
2009
Size
125,000 ft²

Project Description

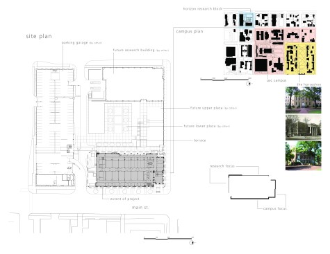
This project was the first building completed by the University of South Carolina in its newly designated research district. Located directly across from the anti-bellum campus, it serves as a gateway between the city and the university, facing each in opposite directions. As such, the north and east street facades abstractly recall the language and rhythms of the campus architecture, while the south and west courtyard facades more closely reflect the scientific research within. Eventually, this building will form one side of a science courtyard, facing it and a future building with a broad expanse of glass, revealing research activity inside and animating the space outside.

As the University of South Carolina, in partnership with the City of Columbia, SC, develops a new “Innovista” research district spanning from the university’s campus down to the city’s riverfront, USC’s “Horizon I” building marks the first step in that effort. As such, the building serves as a symbolic link between town and gown, embracing both an academic tradition tracing back two centuries and the promise of a future state-of-the-art, research-driven economy.

The building’s massing and architectural character address two mandates: a strong desire by the university’s board of trustees to recall the anti-bellum architecture of the university’s historic “Horseshoe” quadrangle, and a desire on the part of university researchers to embrace technological research. The resulting design is a coupling of compositional strategies. A “protective” shell of punched masonry faces the streets and campus beyond, while a thinner, expressive skin of glass and aluminum faces inward and toward the city below. The punched masonry facades, in turn, establish rhythms reminiscent of historic campus architecture but at a much larger scale, incorporating brushed aluminum in the punched openings to both tie with other façade elements and to address the shift in scale. Moving around the building, to the courtyard side, the proportions of masonry to aluminum flip exactly, with masonry panels serving as a foil to abstract compositions of aluminum and glass.

The corner atrium functions literally and figuratively as the gateway to the Innovista. While the exterior expression recalls monumental structures found on the main campus, members are attenuated to allow views inside. Inside, the monumental stair takes on the technological industrial expression of the research labs within.

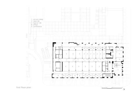
Laboratories within the building are varied and research is proprietary. Each laboratory requires a variety of services and is upfitted with moveable furnishings and equipment, all of which must respond rapidly to change as research develops and evolves.

Designed for maximum flexibility as well as confidentiality, the building is organized into generic zones that can be subdivided as necessary for future researchers. Laboratory zones are organized along a broad service/utility and storage corridor accessed directly off the service elevator. Two types of office/lab configurations are provided, adjacent to labs and across a corridor, depending on team configurations and confidentiality requirements. Communal conference rooms and informal breakout areas are provided at either end of the building.

Upcoming Events

  • Design Smarter: Leveraging GIS, BIM, and Open Data for Better Site Selection & Collaboration

    Live Webinar

    Register for Free
  • Slate Reimagined: The Surprising Advantages of Slate Rainscreen Cladding

    Webinar

    Register Now
  • The State of Residential Design Today: Innovations and Insights from RADA-Winning Architects

    Webinar

    Register for Free
All Events