Urban Live Work Studio

Project Details

Project Name
Urban Live Work Studio
Location
115-C North McDonough St. DecaturGeorgia30030
Architect
LIGHTROOM Studio
Style
Modern

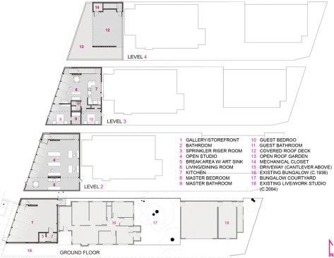
Project Description

FROM AIA GEORGIA: 

The 2,700 Square foot urban live work
studio takes advantage of contemporary urban strategies that encourage street-level activity
through the elimination of building set-backs. The grain of the urban geometries informs the
building structure, with exposed joists on lower levels running at the angle of the street. Natural
daylight is abundant throughout all of the building’s levels, eliminating the need for artificial
lighting during the daytime when it is being used as a work space. The residential level of the
building is differentiated from the others through its refinement and reduced scale.

Upcoming Events

  • Design Smarter: Leveraging GIS, BIM, and Open Data for Better Site Selection & Collaboration

    Live Webinar

    Register for Free
  • Slate Reimagined: The Surprising Advantages of Slate Rainscreen Cladding

    Webinar

    Register Now
  • The State of Residential Design Today: Innovations and Insights from RADA-Winning Architects

    Webinar

    Register for Free
All Events