Urban Awning

Project Details

Project Name
Urban Awning
Location
Los AngelesCA
Architect
Gensler
Project Scope
New Construction
Shared By
Madeleine D’Angelo
Project Status
On the Boards/In Progress
Size
36,000 ft²

Project Description

This project was recognized with an Honorable Mention in the 68th Annual Progressive Architecture Awards and featured in the March 2021 issue of ARCHITECT.

This represents a new way of looking at affordable housing, where the green architecture helps with creating a new typology. Here, it is driving the project form and is unapologetic about it.” —Juror Koray Duman, AIA, principal, Büro Koray Duman

A series of low-slung sloped roofs provides a bold and recognizable identity for the Urban Awning, an affordable multifamily residential development in the Wilmington neighborhood of Los Angeles. Designed by the local office of the global firm Gensler, the open-sided structure is reminiscent of a greenhouse, pairing arrays of south-facing solar panels with north-facing translucent roof panels.

Moreover, the broad roof creates a microclimate for the prototype project’s shared outdoor spaces, which encourage communal activities. Urban Awning’s simple, bold form fits within the constraints of a 45-foot zoning height limit, making it suitable for many locations throughout Southern California. Dubbed a “Trojan Horse” by its designers, the model can be inserted into sites that might otherwise be overlooked, such as those containing warehouses, obsolete big box stores, or contamination.

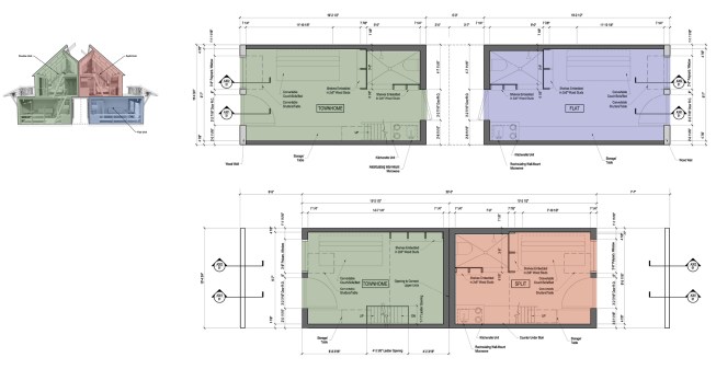
Inside the development, 131 studio apartment units fit in just 36,000 square feet. Three configurations are offered: a single-level, ground-floor flat; a second-floor split unit with an elevated sleeping loft; and a double unit, which combines the flat and split units into a tidy triplex. Toilets placed within showers maximize space, while a single sink serves both the bath and kitchenette. Compact, convertible furnishings enable living rooms to double as bedrooms. Occupant-controlled, passive environmental systems prevail with the transparent glass-fiber ceiling providing natural light, and windows and ceiling fans placed for ample cross ventilation.

Urban Awning’s economies are multiple, with individual design moves adding to a whole that is greater than the sum of its parts: Units are fabricated off-site using panelized steel-stud construction, and water and waste occupy a service way between units, precluding the need for deep foundations or excavation into potentially contaminated soil. The expansive roof harvests stormwater for reuse, generates solar energy, shades the vegetated community living room, and provides an extra layer of protection from the harshest environmental conditions; the roofs of the individual prefabricated units do not need full weatherproofing.

With the two-story building’s occupant density equivalent to a four-story building at half the construction price, Gensler expects the prototype to become a cost-effective solution for supportive housing, low-income households, college students, and seniors on fixed incomes.

Project Credits
Project: Urban Awning
Location: Los Angeles
Client: Gensler and Gilmore Associates
Design Architect: Gensler, Los Angeles · Rob Jernigan, FAIA (managing principal); Eric Stultz, AIA (principal in charge); Roger Sherman, FAIA (design director); Tom Steidl, AIA (residential leader); Craig Stewart, AIA (project architect); Chris Doerr, Jeff Mikolajewski, Kevin Sherrod, Kelly Van Oteghem, AIA , Hailong Li, Arpy Hatzikian
Mechanical Engineer: Affiliated Engineers
Construction: United Brotherhood of Carpenters
Cost Estimator: Cumming Corp.

Upcoming Events

  • Design Smarter: Leveraging GIS, BIM, and Open Data for Better Site Selection & Collaboration

    Live Webinar

    Register for Free
  • Slate Reimagined: The Surprising Advantages of Slate Rainscreen Cladding

    Webinar

    Register Now
  • The State of Residential Design Today: Innovations and Insights from RADA-Winning Architects

    Webinar

    Register for Free
All Events