University of the District of Columbia Building

Project Details

Project Name
University of the District of Columbia Building
Location
WashingtonDC
Architect
Atelier MjK
Project Types
Education
Shared By
Atelier MjK
Project Status
On the Boards/In Progress
Size
40,000 ft²

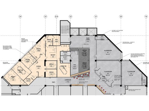
Project Description

This is a two-phase project for the College of Arts and Sciences. One phase is a renovation of one of the University’s 1960s brutalist buildings.

Upcoming Events

  • Slate Reimagined: The Surprising Advantages of Slate Rainscreen Cladding

    Webinar

    Register Now
  • The State of Residential Design Today: Innovations and Insights from RADA-Winning Architects

    Webinar

    Register for Free
  • Specifying Smarter with Copper-Clad Aluminum (CCA) Metal-Clad Cable

    Webinar

    Register for Free
All Events