University of Texas at Austin Cockrell School of Engineering Education and Research Center

Project Details

Project Name
University of Texas at Austin Cockrell School of Engineering Education and Research Center
Location
AustinTX
Architect
Ennead Architects
Project Types
Education
Project Scope
New Construction
Shared By
Ayda Ayoubi
Project Status
Built
Year Completed
2017

Project Description

FROM THE ARCHITECTS:

On Sep. 28, 2017, the Cockrell School of Engineering at the University of Texas at Austin celebrated the opening of a new 432,500 square foot multidisciplinary teaching and research facility, the Engineering Education and Research Center (EERC), designed by Ennead Architects with Jacobs Engineering Group, Inc. The EERC creates a dynamic and unifying new hub for engineering innovation on the UT Austin campus, one that matches the global reputation and ambition of the Cockrell School. Ennead Design Partner Todd Schliemann and Management Partner Kevin McClurkan led the Ennead team. The Jacobs team was led by Principal-in-Charge Bryan Floth.

Over seven years in the making, the EERC defines a new approach to engineering education through the integration of undergraduate project-based learning and interdisciplinary graduate research, with state-of-the-art classrooms, large-scale labs and makerspaces. It includes the 23,000 square foot National Instruments Student Project Center, designed to place the most advanced tools in engineering research into the hands of undergraduates, the James J. and Miriam B. Mulva Auditorium and Conference Center, the Cockrell School’s largest event space, the Texas Instruments teaching and project labs, and the Center for Innovation, the school’s first space dedicated to entrepreneurship and moving revolutionary ideas to market at a faster rate.

Todd Schliemann remarks, “The potential applications for engineering continue to expand, in step with the many complex, urgent problems in need of new approaches. We designed the EERC to meet the challenges of an increasingly collaborative field through architecture that reinforces community through visibility and shared space. Recognizing that innovation requires multiple perspectives, the EERC was conceived as an inspiring learning space to encourage greater collaboration between the next generation of problem solvers in this field.”

“In the Cockrell School, we are committed to developing future engineering leaders – fearless innovators who will transform industries, lead companies and advance the state of Texas and the nation,” said Cockrell School of Engineering Dean Sharon L. Wood. “The opportunities and resources provided by the EERC will launch these leaders into the world.”

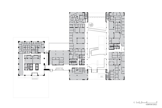
Given the school’s strategic and programmatic needs, the building is organized into two nine-story limestone and glass towers, acknowledging the substantially different requirements for labs, offices and work spaces of the Department of Electrical and Computer Engineering and interdisciplinary graduate research. The two towers, with inwardly-oriented glass curtain wall facades, are connected by an enclosed three-story atrium with a folded glass and steel roof, creating a vibrant, light-filled public space, which is the social heart of the building meant to facilitate “productive collisions” between faculty, staff, students and campus visitors. Bridges and staircases create circulation paths throughout and join the different research environments. Prominently visible through floor-to-ceiling glass along the north wall of the atrium is the National Instruments Student Project Center, dedicated to project-based interdisciplinary learning. Its honest expression of raw concrete, fully exposed mechanical systems, and glass walls from room to room puts engineering, and engineering education, on full display. Architectural gestures throughout the building were designed to elevate and celebrate engineering principles – from the steel truss systems spanning the towers to the intricate spiral staircase, from the delicate “V” column underneath the staircase to the sky bridges connecting the floors.

Ennead Project Designer Alex O’Briant explains, “The design of this project began with establishing the basic drivers, as programmatically there were two research environments that had to function in specific ways. Every other architectural move was made to undo the separation of the two towers and stitch these carefully crafted compartments together into one single cohesive engineering community, through a series of unifying gestures and an emphasis on transparency. We created physical and visual connections throughout and anchored them with a massive, open, light-filled atrium at the center of the building that exposes all the layers of activity going on within the building.”

The EERC provides a centralized new home for the Cockrell School and defines the engineering precinct at UT Austin, activating that edge of campus and mediating between the contemporary buildings in the area and the core campus. With a comfortably-scaled sequence of spaces, the EERC mitigates a thirty-foot grade change across the site to Waller Creek while creating new campus connections and routes of access. The integrated building and landscape design, including shaded walkways and landscaped open spaces and a height setback for the entry, reference the historic campus using modern idioms. The building materials likewise hearken to the traditional campus with the use of local Texas limestone and ornamental metal work in stainless steel and zinc.

A high performance, LEED Silver building, the EERC employs many sustainable design strategies, including optimized solar orientation and a sophisticated, customized sun shading system based on sustainability analytics that maximizes natural light and comfort while minimizing heat gain in the high-intensity solar environment of Austin sun. The building has automated air quality sensors that adjust the rate of air changes in the labs, storm water management systems, and planted roofscapes.

Upcoming Events

  • Design Smarter: Leveraging GIS, BIM, and Open Data for Better Site Selection & Collaboration

    Live Webinar

    Register for Free
  • Slate Reimagined: The Surprising Advantages of Slate Rainscreen Cladding

    Webinar

    Register Now
  • The State of Residential Design Today: Innovations and Insights from RADA-Winning Architects

    Webinar

    Register for Free
All Events