University of California, Riverside Plant Research 1

Project Details

Project Name
University of California, Riverside Plant Research 1
Location
RiversideCA
Project Types
Project Scope
New Construction
Shared By
Alison Day
Project Status
Built
Year Completed
2021
Style
Modern
Size
30,000 ft²
Team
Principal: Eric Aukee
Principal: Andrew Clinch
Principal, Design Director: Yan Krymsky
Room or Space
Specialty Room

Project Description

A new state-of-the-art plant research facility opens at UC Riverside

From testing bee pollination in diverse climates to growing rice that can withstand the most severe droughts, UC Riverside’s new Plant Research facility inaugurates a new season of agricultural innovation for the historic institution.

RIVERSIDE, California— The University of California, Riverside’s College of Natural and Agricultural Sciences (CNAS) has opened a new plant research facility, ushering in a new era of scientific development and innovation for the institution. Perkins&Will’s Los Angeles studio led the award-winning design of the two-story, 30,000-square-foot greenhouse facility, which equips the college with best-in-class agricultural research technology, enabling researchers to conduct studies previously unattainable at the university.

“This greenhouse gives us a much higher control in terms of temperature, humidity, and light,” says Julia Bailey-Serres, a distinguished professor of genetics and director of the Center for Plant Cell Biology. “We have this incredible ability to grow all year round.”

A facilitator of research
Several research activities have already been underway inside the new facility, which completed construction in 2021 and has gone through several years of preparation and testing. Some of the latest experiments include investigating how well bees can pollinate in different climates, testing how to grow rice to withstand drought and flooding conditions in countries like India, and examining how different kinds of plants can act as a decontaminant for soil.

“It’s really a machine, a tool for research,” says Yan Krymsky, design director of Perkins&Will’s Los Angeles studio. “But beyond that, we wanted to create a structure that spoke to the legacy of the university.” That’s a legacy steeped in a commitment to advancing the agricultural and natural sciences. It goes as far back as 1907 when the University of California Citrus Experiment Station, which later became UCR, was constructed. The new facility sits within a district of greenhouses originally built on the main campus in the 1960s.

A historical rootedness
The gables of the surrounding greenhouses inspired the design of the Plant Research building, which is expressed in the upper-level glass roofs. The serrated concrete walls at the ground level and the array of fans running across the structure’s south elevation compliment the rhythmic quality of the upper-level greenhouses. The minimalist use of concrete, steel, and glass allows the building to display its overall function and historical connectedness all in one stroke.

“It was important for us to couple practical functionality and the aesthetic roots of the surrounding greenhouses with the college’s forward-looking spirit and focus on scientific innovation,” says August Miller, a senior designer on the Perkins&Will team. “This ultimately translated to a series of greenhouse modules, each its own independent laboratory, at the upper level.”

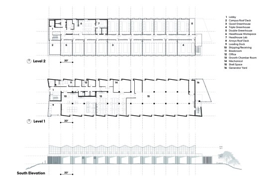
A compact cluster of 16 greenhouse modules sits on the second level of the research facility atop a concrete-wrapped ground level. The ground level includes a workroom for potting plants and other activities, a room for growth chambers, and other amenities, including a lobby, breakroom, and restrooms. The serrated concrete wall that envelops the lower-level acts as a thermal mass that stabilizes swings in internal temperature, reducing the need for mechanical air conditioning and capitalizing on the Southern California climate.

State-of-the-art calibration
Each upper-level greenhouse is encased in double-pane polarized glass, the transparency of which reveals the research activities taking place within. Humidity, temperature, lighting, and other conditions can be independently calibrated in each module to mimic a diverse range of conditions. Climate control is assisted through vertical and horizontal automated shades that enable researchers to closely tune the natural light, adding another layer of customization. Air-conditioning stabilizes select areas, but an evaporative cooling system covers the whole building, allowing it to maintain temperatures lower than other research greenhouses on the campus.

A promising future
“We are anticipating placing priority on projects that need more specialized environment, things that need humidity and more accurate temperature control,” explains Peggy Mauk, director of agricultural operations and a professor of subtropical horticulture with CNAS. According to Mauk, the facility will work well for research involving insects that need colder temperatures, plants that grow at high altitudes, or pathogens requiring tightly controlled environments. “The building is the first new plant research facility built on campus in close to 40 years,” says CNAS Dean Kathryn Uhrich, “and is considered instrumental in maintaining UCR’s continued leadership in agricultural research for the coming decades.”

“I’m thrilled about the amazing work being facilitated in the new CNAS Plant Research building,” says Jessica Orlando, associate principal and higher education practice leader at Perkins&Will Los Angeles. “Our team feels so privileged to have contributed to the delivery of a functional, high-performance building that also creates a stunning design that pays homage to UC Riverside’s rich campus fabric.”

###

About Perkins&Will
Perkins&Will, an interdisciplinary, research-based architecture and design firm, was founded in 1935 on the belief that design has the power to transform lives. Guided by its core values—design excellence, diversity and inclusion, living design, research, resilience, social purpose, sustainability, and well-being—the firm is committed to designing a better, more beautiful world. Metropolis named Perkins&Will “Firm of the Year” in 2022 for its industry leadership in advancing climate action and social justice. Fast Company named Perkins&Will one of the World’s Most Innovative Companies in Architecture three times, and in 2021, it added the firm to its list of Brands That Matter—making Perkins&Will the only architecture practice in the world to earn the distinction. With an international team of more than 2,000 professionals, the firm has over 20 studios worldwide, providing integrated services in architecture, interior design, branded environments, urban design, and landscape architecture. Industry rankings consistently place the firm among the world’s top design practices. Partners include Danish architects Schmidt Hammer Lassen; retail strategy and design consultancy Portland; sustainable transportation planning consultancy NelsonNygaard; and luxury hospitality design firm Pierre-Yves Rochon (PYR). For more information, visit www.perkinswill.com.

About the Los Angeles Studio of Perkins&Will
Perkins&Will’s Los Angeles studio is as diverse and distinctive as the bold colors and shapes in its designs. Located in the heart of downtown L.A., the studio is on a mission to lead projects that contribute to the greater good, and that help make a lasting, positive change in the lives of the people who use them.

Upcoming Events

  • Design Smarter: Leveraging GIS, BIM, and Open Data for Better Site Selection & Collaboration

    Live Webinar

    Register for Free
  • Slate Reimagined: The Surprising Advantages of Slate Rainscreen Cladding

    Webinar

    Register Now
  • The State of Residential Design Today: Innovations and Insights from RADA-Winning Architects

    Webinar

    Register for Free
All Events