United Airlines B18 Red Carpet Club

Project Details

Project Name
United Airlines B18 Red Carpet Club
Location
ChicagoIL
Project Types
Shared By
BTL
Project Status
Built
Year Completed
2008

Project Description

FROM THE ARCHITECTS:

In collaboration with the London office of Pentagram, our office designed United Airlines’ first new lounge to be constructed in over nine years. In developing new ways to experience the airline lounge, comfort, convenience, and connectivity are brought to new and sophisticated levels, tailored to the frequent traveler.

The Red Carpet Club at the north end of O’Hare’s ‘B’ Concourse literally moves the traveler away from the congestion of the terminal holding area, and brings them through a series of spaces that offer relief from airport intensity in a serene environment for work and relaxation.

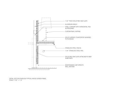
An abundance of natural light is created by a series of modular wood screens that wrap around the perimeter of the space, providing warmth and comfort as well as a carefully screened visual connection to the outside operations of the airport. Specific lounge areas are distinguished by their furniture arrangements and materials – defining but not limiting their functions – and are anchored by a circulation core of glass, stainless steel, and stone.

The new building envelope for the lounge was created by capturing space that was previously used for non-public airport operations on the ramp level and making structural changes on the concourse level to connect the two. Due to complex issues of security, technology, and airport equipment operations that commingled with this area, the architects had to coordinate their work with four different government agencies and three different corporate divisions of the airline. As a result, all operations remained uninterrupted during the eight-month construction schedule.

For more information, please visit https://www.brininstool-lynch.com/selected-work/ua-red-carpet-club

Upcoming Events

  • Design Smarter: Leveraging GIS, BIM, and Open Data for Better Site Selection & Collaboration

    Live Webinar

    Register for Free
  • Slate Reimagined: The Surprising Advantages of Slate Rainscreen Cladding

    Webinar

    Register Now
  • The State of Residential Design Today: Innovations and Insights from RADA-Winning Architects

    Webinar

    Register for Free
All Events