Unit 9C

Project Details

Project Name
Unit 9C
Location
ChicagoIL
Project Types
Single Family
Shared By
VRadutny
Project Status
Built
Year Completed
2016
Style
Modern
Size
750 ft²
Team
Principal: Vladimir Radutny

Project Description

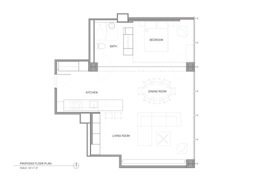
Within this iconic high-rise unit, our clients imagined their second home with few boundaries between them and the exterior breathtaking views. By removing all of the opaque walls and introducing an architectural language of floating volumes and space-defining planes, we created the desired spatial experiences that did not previously exist. At the entry, while drawing direct connections with the lake, we added an open kitchen creating a multi-functional space. To the right, the carefully placed floating mass welcomes you, gesturing towards the main room. As it extends deeper into the living space, a reading nook is formed at the back of the projection, offering a sense of refuge inside of an open plan. When sitting, this projected element transforms, reflecting the adjacent spaces within its carved niche. The integration of a seemingly continuous glass plane provides privacy between the two primary living zones. However, its true function is to create a backdrop of illusion, capturing the expansiveness of the exterior, as well as the dynamic mood changes of the Great Lake. In re-orienting the plumbing-dependent elements of both the kitchen and bath towards the lake, we physically and visually connected them with adjacently shared zones. Now, one can admire the sunrise while showering and absorbing the horizontal morning light. While placing emphasis on the refined expression of the building’s minimalist tradition, a quiet living space is formed for contemplation and refuge in the sky.

Upcoming Events

  • Design Smarter: Leveraging GIS, BIM, and Open Data for Better Site Selection & Collaboration

    Live Webinar

    Register for Free
  • Slate Reimagined: The Surprising Advantages of Slate Rainscreen Cladding

    Webinar

    Register Now
  • The State of Residential Design Today: Innovations and Insights from RADA-Winning Architects

    Webinar

    Register for Free
All Events