Underground Forest in Onepark Gubei

Project Details

Project Name
Underground Forest in Onepark Gubei
Location
ShanghaiChina
Architect
Wutopia Lab
Project Types
Project Scope
New Construction
Shared By
Ashleigh Popera
Project Status
Built
Year Completed
2017
Size
10,764 ft²
Team
Chief Architect: YU Ting
Project Architect: ZHANG Shuojiong

Project Description

FROM THE ARCHITECTS:

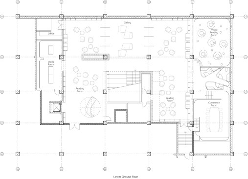
This project is the last part of Onepark Gubei community club, which has already completed other spaces such as fitness, yoga, SPA, swimming pool, coffee, children's playground and so on. But as same as all senior districts, the community club had not done a great job for residents to be together, the reality behind the luxury is always loneliness of the independent families. The developer finally decided to build the neighborhood center, hoping residents could get to know each other here. But what kind of place can attract residents? Conference, reading room, children's library, gallery, audio-visual room? Or the combination of them? This willing for the future and the uncertainty of execution allow the architects to explore a more socialized proposition: how to use buildings as a tool to activate the meaning of community centers under the condition of restrictive internal open, and to further promote the communication of neighborhoods.

Onepark Gubei is a high-end residential district and a fertile place in Shanghai. Developers carefully developed and maintained the district to guarantee the buildings, space and living quality on a superb level. The district's public area and the overall environment has a high-end tradition, showing a serene elegant and elite ritual. The architects use this as a last design sentence, with a contrast to create a soft, relaxed reading space as the next sentence. To plant a knowledge of forest in the marble Community Club, hoping the residents can be gently wrapped in the warmth of the soft environment, so that they could remove the busy material life and return to the familial relaxed atmosphere. Here they would be willing to know people in the same community and promote communication between each other, thus activating the social potential of the neighborhood.

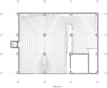
As the material conditions gets better, spirit needs more room to highlight its warmth to people. The architect’s idea of the free reading and art scene moved the owners. They were commissioned to redesign the project which had already started construction. In the specific implementation, the architects use the most reasonable and economical way to intervene in the design changes. Without changing the original structure, zoning, norms and other design basis of the case, the entire space environment completes its reborn. On the entrance floor (upper floor), the curvature wood looking aluminum plates softly rise and fall, cloud-like chandeliers meandering through the place, as if the courtyard green is invited to the inside and refined to form a forest-like free space. Community residents can remove the mask in social life and have a relaxed communication here with a joy of the festival.

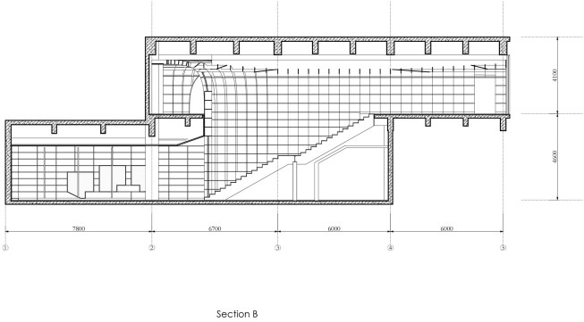
The grand step acts as a leading role to make the upper and lower floors together, not only the flow of people, light can also pour down along the grand step from the outside into the lower floor.
The lower floor is different from the upper one, which is a quieter dual space. The demand for communication is reduced, visitors here would be more focused in reading and appreciating art painting. As people need to be sunk, the architects used a large area of black to weak the degree of activity, and further use black and light to create a more private, meditative space in the wings as well as the bathroom. Thus creating most mysterious mood of bathroom within the whole community. Finally, the neighborhood center reached the architect's vision of free communication and thinking.

In order to achieve such a soft and free place, we used a large number of forefront concept of digital and technology. Each curve, groove and tongue on different plates are optimized through Programming design and directly produced by the NC machine tools to be installed on site. Although we created a very humanistic mood in building the environment, in the design and construction methods, we use latest technologies in the sense of the time- this is also a kind of Dual representation.

Murakami Haruki once said, "Everyone has a forest of their own, maybe we had never been there, but it is always there. Lost people are lost, met ones will meet again."

The architect specially created the inside forest for the neighborhoods within Onepark Gubei.

Upcoming Events

  • Build-to-Rent Conference

    JW Marriott Phoenix Desert Ridge

    Register Now
  • Reimagining Sense of Place: Materiality, Spatial Form, and Connections to Nature

    Webinar

    Register for Free
  • Homes that Last: How Architects Are Designing a Resilient Future

    Webinar

    Register Now
All Events