UCSB San Joaquin Student Housing

Project Details

Project Name
UCSB San Joaquin Student Housing
Location
Santa BarbaraCA
Project Scope
New Construction
Shared By
katie_gerfen
Project Status
Built
Year Completed
2017
Size
95,000 ft²
Certifications & Designations
LEED Platinum
Team
principal-in-charge: Lorcan O'Herlihy, FAIA

Project Description

2018 Residential Architect Design Awards / Student Housing / Award

“If I were living in this building as a student, I would feel like I was living in an apartment, which is kind of a cool feeling. And I like the plan—how the massing allows you to move through this project and to the rest of campus.” —Rosalyne Shieh

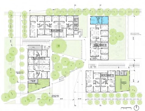
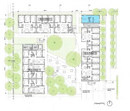
Los Angeles–based Lorcan O’Herlihy Architects has designed two clusters of buildings—one set of three and another of four—on the northern edge of the University of California, Santa Barbara (UCSB) campus. The project provides 50 student housing units within 95,000-square-feet of new construction. The architects blew open UCSB’s typical housing model—outward-looking blocks with lifeless interior courts—by exposing the circulation on the interior side of each new building to the open air. Lined with minimal steel columns and simple industrial cable mesh, these outdoor walkways link the blocks into unified clusters, creating lively and active spaces that help establish community among the student population. Exposed stairs share the same formal vocabulary to further contrast the buildings and their circulation spaces.

Organized around the activated courtyards, outward-facing student rooms are conceived as regularized, economically stacked units with a subdued architectural expression—providing a quiet exterior edge that contrasts with the active interior walkways. Solid perimeter façades are clad in corrugated metal panels with punched windows, and L-shaped sunshading devices shield exposed openings from the Southern California sunlight.

Reading rooms, gathering spaces, and dining facilities were conceived as social hubs and are distributed throughout the blocks. These public spaces feature floor-to-ceiling glazing and their open expression relates to the exposed frame walkways and stairs, establishing a clear formal relationship between public spaces and public circulation. Most are located on the second and third floors, helping to activate the external corridors as they draw students.

The design uses passive strategies that leverage Santa Barbara’s ideal coastal climate for sustainability, as well as creating a pleasant series of protected outdoor places with natural plantings on the UCSB campus.

See the full list of winners of the 2018 Residential Architect Design Awards.

Project Credits
Project: UCSB San Joaquin Student Housing, Santa Barbara, Calif.
Client: University of California, Santa Barbara
Architect: Lorcan O’Herlihy Architect, Los Angeles . Lorcan O’Herlihy, FAIA (principal-in-charge), Donnie Schmidt (project director), Damian Possidente (project manager), Noelle White
Mechanical Engineer: BuroHappold Engineering
Structural Engineer: Nabih Youssef Associates
Civil Engineer: Penfield and Smith Engineers
Construction Manager: Harper Construction Co.
Landscape Architect: TLS Landscape Architecture
Cost Estimator: C.P. O’Halloran Associates
Size: 95,000 square feet
Cost: $23 million

Materials and Sources
Appliances: Frigidaire
Bathroom Fixtures: American Standard (Comrade Wall-Hung Lavatory, Cadet Pro Right Height)
Countertops: Global Stone
Flooring: Interface (carpet); Lonseal (vinyl flooring); Daltile (tile)
HVAC: Parker (heat boilers); Runtal (radiators); Mitsubishi (Spilt System Fan Coil Units, Split System Condensing Units)
Insulation: Owens Corning
Kitchen Fixtures: Elkay (Lusterstone Single Bowl Sink)
Lighting: Birchwood, Halo, Axis Lighting, Cooper Lighting, WAC Lighting
Paints/Finishes: Dunn Edwards Windows: Milgard
Windows: Milgard

FROM THE ARCHITECTS:

LOHA’s LEED Platinum plan for seven student housing structures as part of the San Joaquin Housing complex at the northern limit of the University of California, Santa Barbara, represents an application of the firm’s expertise in urban environments reimagined for university context.

Respecting the adjacent community’s scale and character, LOHA’s design comprises housing clusters characterized by a solid outward-facing edge and an activated campusoriented edge. This project will join additional housing volumes and student facilities to make up UCSB’s 15-acre North Campus. Stimulated by an undulating circulation system that weaves between the social hubs incorporated within its buildings, the new housing seeks to foster and advance the robust social and intellectual life of UCSB.

UCSB dormitories have typically pushed circulation to their exterior envelope, with an inert central courtyard accessible only from within the building. LOHA’s design inverts this circulation scheme, designing a reductive exterior edge with an open, lively interior courtyard containing all building circulation, encouraging movement throughout the complex. Social hubs (reading rooms, gathering spaces, dining) are dispersed and floated above others. This distribution of spaces creates varied student experiences to generate a healthy campus culture.

Passive design strategies and innovative material choices resulted in a project that is substantially more efficient and utilitarian than standard new construction and will continue to reduce ecological and economic impact in the years and decades to come. Regularized units that seamlessly stack upon one another as well as the utilization of off-the-shelf industrial grade materials create efficiency in both short-term resource management and long-term adaptability. Ecologically, LOHA remained committed to utilizing the ideal coastal climate of Santa Barbara as the centerpiece of our design, allowing the natural habitat to fully inform the built environment.

In this scheme, LOHA employed corrugated metal panels – conventionally found in utilitarian and industrial applications – to create a visually dynamic street-facing façade. The interior-facing elevations are covered in a painted plaster, permeated by aluminum fins that physically support the elevated walkways, making them not only a standout design feature but also an economically necessary design feature, integral to the buildings’ construction. The stairways, finished with industrial cable mesh, further emphasize a commitment to utilizing materials that are extremely durable and longlasting as well as economical to replace when needed.

Outdoor single-loaded corridor with aluminum sunshades were designed to encourage both an outdoor lifestyle and passive ventilation throughout units. Passive fresh air intake units were also designed for each unit’s entryway. Additionally, with a built environment that is more than 90% permeable, considerable measures were taken to prevent heat island effects onsite.

Certified LEED Platinum, the UCSB San Joaquin project also advances the student housing model by integrating several sustainable strategies like natural ventilation, solar shading, bioswales, solar water heating, increased insulation, siting, and energy-efficient systems. The project is 20% over California’s Title 24 requirements

Upcoming Events

  • Design Smarter: Leveraging GIS, BIM, and Open Data for Better Site Selection & Collaboration

    Live Webinar

    Register for Free
  • Slate Reimagined: The Surprising Advantages of Slate Rainscreen Cladding

    Webinar

    Register Now
  • The State of Residential Design Today: Innovations and Insights from RADA-Winning Architects

    Webinar

    Register for Free
All Events