Turkistan Media Center

Project Details

Project Name
Turkistan Media Center
Architect
DRA&U
Project Types
Cultural
Project Scope
New Construction
Shared By
DRAU
Project Status
Concept Proposal
Year Completed
2018
Style
Modern
Team
Senior Architect : Giorgio Pini
Room or Space
Architectural Detail

Project Description

DRA&U's winning project creates a modern interpretation of Islamic Architecture.

Rome-based architecture studio DRA&U wins “Turkistan Architect Awards”, creating a high-tech building complex for media in the city of Turkistan, known also as the Second Mecca of the East, tracing the evolution of Islamic architecture elements to their modern interpretation.

Considering as the starting point a rectangular prism, DRA&U senior architect Giorgio Pini studied its creative transformation through a focus on the ‘arch’ as the main architectural element.

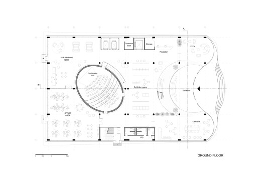
The regular shape of the four-storey Media Center is enlivened by the entrance space. The glass organic shape of the main entrance façade is formed by two lateral convex arches, culminating in a concave central shape, designed to represent “information flow hub”.

A series of metallic “ribbons” wrap around the surface of the structure horizontally and they are being transformed in four ascending parabolic arches, ensuring a monumental entrance.

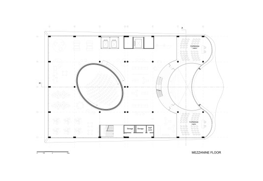
The crescent footprint on the entrance floor symbolizes another main feature of the Islamic world and can be found repeated on each floor as a slab’s gap.
Following the crescent-shape of the foyer, a curvy perforated panel is placed on the back of the reception desk which reaches the ceiling of the roof and serves to separate the reception area from the rest of the ground floor.

The architectural concept of the transparent glass façade directly reflects the functional solutions on the interior space. Daylight penetrates the heart of the building through the transparent glass walls acting as an independent material to participate in the design of the building.
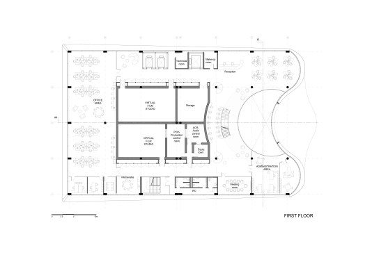
The facilities have been divided into three functional zones smartly distributed throughout the building’s levels according to the type of the activities. The public functions of the Media Center are placed primarily on the active ground floor creating a direct connection with its external visitors which can utilize the features of a spacious lobby, conference hall, cafeteria, service desk and an exhibition space expandable to a multi-functional area. The upper levels host the office areas and the studios for audio-visual media production. Adjacent to the closed compact studios there are the open-plan office areas spread on each floors of the building available for use to the various city’s TV and radio channels.

Upcoming Events

  • Design Smarter: Leveraging GIS, BIM, and Open Data for Better Site Selection & Collaboration

    Live Webinar

    Register for Free
  • Slate Reimagined: The Surprising Advantages of Slate Rainscreen Cladding

    Webinar

    Register Now
  • The State of Residential Design Today: Innovations and Insights from RADA-Winning Architects

    Webinar

    Register for Free
All Events