Tsunashima House

Project Details

Project Name
Tsunashima House
Location
Kohoku WardYokohamaJAPAN223-0053
Architect
Roovice
Project Types
Single Family
Shared By
Roovice
Project Status
Built
Year Completed
2021
Team
Architect, Construction manager: Moe Watanabe

Project Description

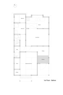
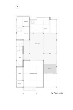
Tsunashima House is the renovation of a two-storey family house and its detached stand-alone building originally built during the 1970s in Kohoku, north side of Yokohama.
The project wanted to subtract elements to the existing premises for opening the space, thus making the living areas more flexible. Prior to the renovation the first floor was indeed characterised by a hectic sequence of rooms and hallways that gave the dwelling a maze-like effect.

Therefore, the new layout generated a visual connection from the north side to the south by removing the walls in the centre of the plan. Their presence still remains thanks to the leftover diagonal pillars that now have a predominant role: they act as dividers between the various spaces, providing a pleasant transition from kitchen to dining and living.
Because of that, the whole floor plan managed to increase its amount of natural light. The Japanese-style room next to the entrance hasn’t received any change, with all the original elements still in place. This creates a nice distinction from the calm tone of the traditional ambience to the bright modernised space remaining. This contrast has been enhanced also vertically by the exposed ceiling of the living opposed to the flat one of the tatami room.

The kitchen wall is covered with the ordinary 10x10cm white tile which became popular in Japan starting from the XX century: while being an affordable and reliable material, it provides a cosy atmosphere by reflecting the light incoming from both horizontal and vertical openings. The ceiling window, in particular, has been simplified in its shape and fits now more with the structure and the surrounding walls.

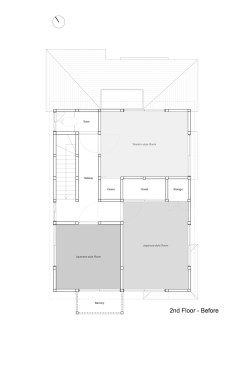
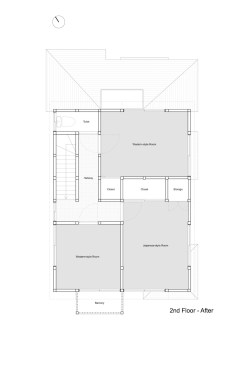
On the west end of the house, the wooden stairs lead to the above level. Here the layout hasn’t changed from before, since the work focused on repairing damaged elements or replacing when needed. Despite being designed roughly 35 years ago, the disposition of the second floor still works nowadays. Three rooms divide the space more or less equally, with a toilet on the north side and the stairways on the west. This gives each space a unique view and plenty of natural light thanks to the large size windows. Almost every element here has been repaired, with the pavements being the only exception.
In fact, all rooms replaced their outdated flooring for a new one with the same tone. In addition, the hallway removed the cushion layer in favour of the underneath covered woven floor. The juxtaposition of the latest carpet floor with the traditional wooden texture of the exposed structure in the Japanese-style room produces a relaxing contrast between old and dated features.

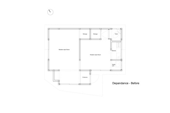
The renovation for the detached stand-alone brought some major changes both spatially and visually. Again, the internal walls were removed in favour of a continuous space, with the remaining pillar working as a threshold between the living room and the bedroom. Thanks to the disposition of the various services on the edges of the floor plan and to the bright overall aesthetic, the building benefits from plenty of natural light.

Upcoming Events

  • Design Smarter: Leveraging GIS, BIM, and Open Data for Better Site Selection & Collaboration

    Live Webinar

    Register for Free
  • Slate Reimagined: The Surprising Advantages of Slate Rainscreen Cladding

    Webinar

    Register Now
  • The State of Residential Design Today: Innovations and Insights from RADA-Winning Architects

    Webinar

    Register for Free
All Events