Tsunami House

Project Details

Project Name
Tsunami House
Location
Camano IslandWAUSA98282
Project Types
Single Family
Project Scope
New Construction
Shared By
Dan Nelson
Project Status
Built
Year Completed
2013
Style
Modern
Size
3,140 ft²
Team
Principal Architect: Dan Nelson, AIA

Project Description

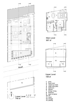
The Tsunami House is a waterfront home located on a 3,140 square foot site in a high velocity flood (V) zone on the northern end of Camano Island. The building footprint was limited to a 30’ x 30’ pad.
The 887 square foot main living level had to be located 5' above grade and the foundations had to be designed on pilings capable of withstanding high velocity tsunami wave action, 85 mph winds, seismic Zone D earthquakes. The lower 748 square foot space had to be designed with walls that were able to break away in the event of a storm surge.
Our design strategy was to locate the main living level 9' above grade and leave the lower level to be used as a flexible multi use space dubbed the “Flood Room.” Clear glass overhead doors open up to the waterside deck facing north, and translucent overhead doors open to the entry courtyard facing south, allowing privacy from the road.
The depth of the lot is only 50' deep and required an above ground sand filter drain field that was 10 ' wide. In order to integrate the sand filter into the limited site, it was encased in 3' high architectural concrete walls and covered with a pervious sun deck on top of the drain field. The drain field/sun deck also acts as a visual barrier between the road and the house providing privacy when all the overhead doors are open.
A steel stair constructed of bent plate steel leads up to the main living area, which is designed as a great room with the kitchen, living, dining, and a 198 square foot third level sleeping loft facing the water. The master bedroom located adjacent to the great room has sliding translucent doors that let light into the space and open up to the water view.
The exterior materials of the house are durable and low maintenance. The architectural concrete columns are left exposed and the exterior siding is a mixture of composite and galvanized standing seam panels and aluminum windows. The lower level floor is polished concrete with radiant in floor heat and the ceilings are covered with western red cedar to add warmth to the otherwise industrial feeling of the lower level.
The upper level is more refined with porcelain tiles on the floor, western red cedar on the ceiling and a sculptured “wave” plaster panel and milled finished steel trim surrounding the fireplace. The interior ship ladder and loft railings are mill finish steel throughout. References to the natural world are made throughout the interiors.

Upcoming Events

  • Design Smarter: Leveraging GIS, BIM, and Open Data for Better Site Selection & Collaboration

    Live Webinar

    Register for Free
  • Slate Reimagined: The Surprising Advantages of Slate Rainscreen Cladding

    Webinar

    Register Now
  • The State of Residential Design Today: Innovations and Insights from RADA-Winning Architects

    Webinar

    Register for Free
All Events