Truro Dune House

Project Details

Project Name
Truro Dune House
Location
TruroMA
Project Types
Shared By
dmadsen
Project Status
Built
Size
1,400 ft²

Project Description

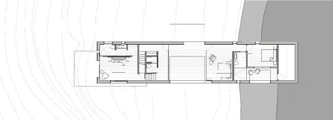
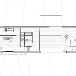
This project strives to balance the considerable economic value of a remarkable parcel of land with both the goals of its owner and the emotional connection to the property felt by those within its viewshed. Located among the sand dunes and scrub oak overlooking a pristine waterfront, this parcel is perhaps the largest, most beautiful buildable coastal site remaining on outer Cape Cod. The prospect of construction on this land has been met with trepidation for years. Locally, the parcel is known as the ‘Hopper Landscape’ in recognition of the adjacent house and studio of the American painter Edward Hopper. The house and site strategy shown here preserves the overall viability of the site, by reusing an historic 1820 house on an inland portion of the site and imbuing it viscerally, if not literally, with an ocean view by constructing the Dune House.

At a comparatively modest 1400 SF, the Dune House allows shelter and accommodations overlooking the beach and consciously does not compete with the Hopper House for high ground or stature. It is frankly, even starkly modern, evoking the very sense of isolation that Hopper celebrated and documented in this landscape. The house is composed of a concrete base, partially submerged into the dune, with interwoven indoor spaces and outdoor terraces cut into its south-facing façade. Approached from the land side, it is entered through lower courtyards, or by roof access to the glass living pavilion hovering above. The roof of the plinth is planted as a continuation of the existing context of native bayberry.

Upcoming Events

  • Design Smarter: Leveraging GIS, BIM, and Open Data for Better Site Selection & Collaboration

    Live Webinar

    Register for Free
  • Slate Reimagined: The Surprising Advantages of Slate Rainscreen Cladding

    Webinar

    Register Now
  • The State of Residential Design Today: Innovations and Insights from RADA-Winning Architects

    Webinar

    Register for Free
All Events