Tropical Cave

Project Details

Project Name
Tropical Cave
Location
Hai Ba Trung StreetBac NinhVIET NAM
Architect
H&P Architects
Project Types
Single Family
Project Scope
New Construction
Shared By
Doan Thanh Ha
Project Status
Built
Year Completed
2019
Style
Modern
Team

Project Description

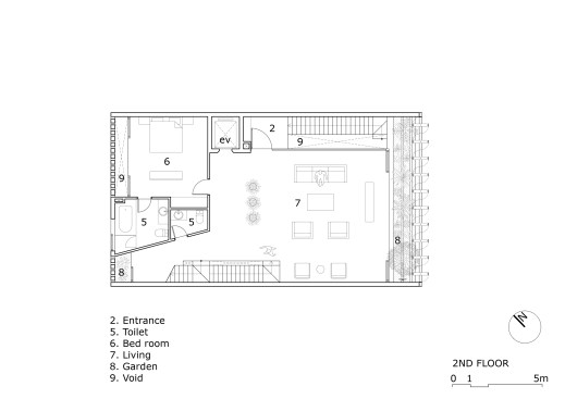
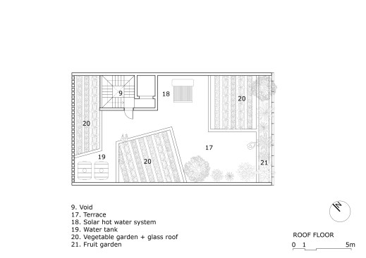
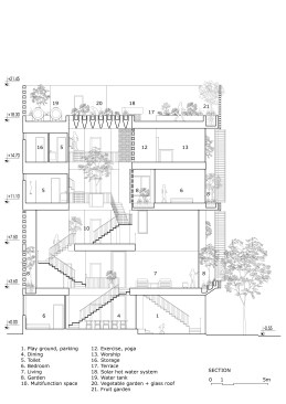
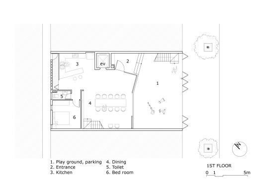
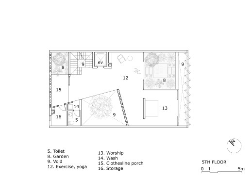
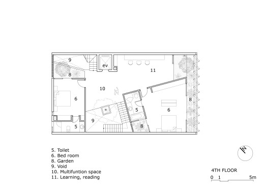
Located in the center of BacNinh city, the house can accommodate an extended family of 4 generations. Its design is inspired by light and space effects, which resembles the “cave” style in a humid subtropical climate to bring about positive and vivid experiences to users’ senses: low (at the entrance), wide and high (inside), narrow (nooks and crannies), open outwardly (door system); even light distribution (outside), gradual darkening (inward), streams of light (from above), alternating vegetation, etc.
Named Tropical Cave, the project employs void space as a catalyst to create the structure of the house with multiple layers of walls for shielding and connecting spaces forwind catching. The house levels for specific purposes are randomly connected at different staircase positions so as to create and maintain a “fresh journey of experience” with interesting views and non-repeatable images. A multi-dimensional transition space is also made from being shared to semi-private to private, alternated by vegetation (plants, vegetables).
The front facade has two large door systems (each with 10 doors of 6.6m high) and can be opened and closed (breathing) by hand easily via a steering wheel and a power-assisted steering. Skylight, door system and vegetation help regulate microclimate (sunny, rainy, windy, smoggy, noisy), thus giving usersa customized view and blurring the boundaries between inside and outside, architecture and landscape.
In the ongoing unplanned urbanization, urban houses are gradually suffocating, isolating, and cutting off themselves from friendly relationships with the surrounding environment, making users insecure even when they are in their own accommodations. Tropical Cave is introduced as a solution to help awaken to the facing problem, thereby creating a haven for homeownersto again stay in a safeplace and take the same breath with the contemporary house,from the perspective of living harmoniously with the environment.

Upcoming Events

  • Design Smarter: Leveraging GIS, BIM, and Open Data for Better Site Selection & Collaboration

    Live Webinar

    Register for Free
  • Slate Reimagined: The Surprising Advantages of Slate Rainscreen Cladding

    Webinar

    Register Now
  • The State of Residential Design Today: Innovations and Insights from RADA-Winning Architects

    Webinar

    Register for Free
All Events