Tribeca Loft

Project Details

Project Name
Tribeca Loft
Location
New YorkNew York
Project Types
Multifamily
Project Scope
Interiors
Project Status
Built
Size
3,000 ft²

Project Description

2015 Residential Architect Design Awards
Architectural Interiors
Citation

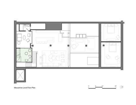
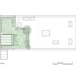
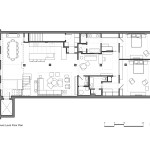
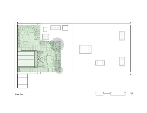
Andrew Franz Architect, a firm that has its office not far uptown from this 3,000-square-foot Tribeca loft, cut through the roof of a six-story 1884 warehouse once used for caviar storage to create a mezzanine and courtyard that lead up to a planted roof through a retractable skylight. The glazed mezzanine lets light travel deep into the formerly dark space, and to reach this mezzanine from main living space, you walk up a custom steel stair that features treads made from ceiling joists that were salvaged from the roof of the old warehouse. The history of the building was a primary source of inspiration for the architects, and many elements, like the arched windows, were preserved. Exposed brick walls and original timber beams add a tactile quality and material richness to the space. Architectural elements like cabinetry and custom metal work were locally crafted. The rooftop garden, with its views of the city and Hudson River, incorporates reclaimed bluestone pavers and low-maintenance native plants. —Alan G. Brake

From the Jury

“Sectionally, it’s a very interesting project. It is livable, warm, and fun.” —Seth Grizzle

Project Credits

Architect: Andrew Franz Architect, New York—Andrew Franz, AIA
Project Size: 3,000 square feet
Construction Cost: $530 per square foot

Click here to see all of the winners from the 2015 Residential Architect Design Awards.

Upcoming Events

  • Build-to-Rent Conference

    JW Marriott Phoenix Desert Ridge

    Register Now
  • Reimagining Sense of Place: Materiality, Spatial Form, and Connections to Nature

    Webinar

    Register for Free
  • Homes that Last: How Architects Are Designing a Resilient Future

    Webinar

    Register Now
All Events