Trenton Watch Factory

Project Details

Project Name
Trenton Watch Factory
Location
TrentonNJ
Project Types
Multifamily
Project Status
Built
Year Completed
2016
Size
1,024 ft²

Project Description

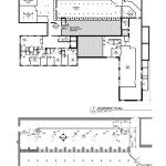
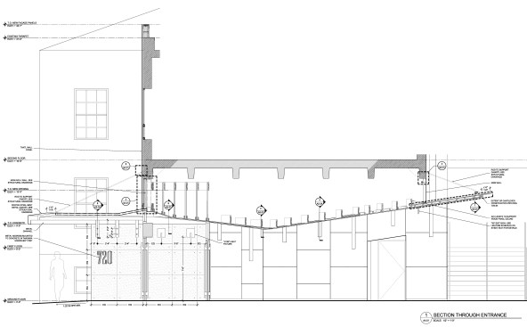
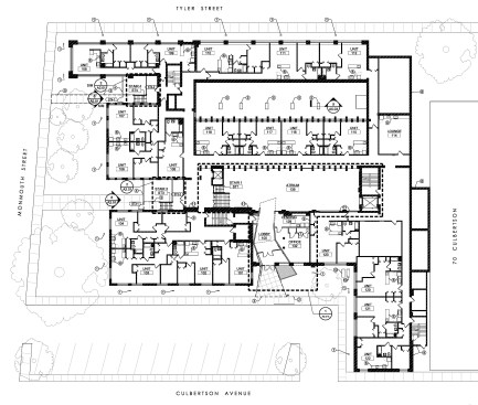
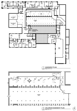
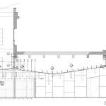
Ajax Management hired Coscia Moos Architecture to design a renovation of the exterior entrance and amenity spaces in the Trenton Watch Factory. The Trenton Watch Factory was the manufacturing site for the Trenton Watch Company. Founded in 1883, the company specialized in manufacturing various timepieces, parts, and accessories. Originally based in New Haven, the company moved to the Chambersburg neighborhood of Trenton in 1886. In 1998, the Trenton Watch manufacturing building was converted to senior housing apartments. Ajax Management hired Coscia Moos Architecture to design a renovation of the public spaces, totaling approximately 12,000 sf. The residential spaces were augmented by new amenity areas, such as a fitness facility and several lounges. Sergio Coscia was responsible for designing the new facade and the front entrance for the 1998 addition, relocating the front entrance and covering it with a deep Corten steel canopy. The canopy is cantilevered off a poured-in-place concrete wall on one side. The remainder of the new façade is covered by a fiber cement rain screen. The windows also were replaced, and the façade has metal accents to complement the canopy. The front entrance leads to an angular, plywood “portal” that cuts through the building and leads to the atrium. The “portal” is interspersed with beams of light from illuminated vertical cut-outs in the plywood. Light bounces off of the polished wood and finished concrete floors. Where the portal opens into the atrium, Coscia Moos Architecture created an angled plywood canopy to echo the form on the front entrance. This canopy is supported by a cable anchored into the atrium wall. The atrium, created when the original factory buildings were renovated for housing, also received an updated look. The existing concrete floors were polished, and plywood panels were placed to create continuity with the entrance “portal”. Metal accents that match those on the front entrance façade encase the elevator shaft. There were few site and zoning constraints. Ajax Management applied for historic tax credits to complete the renovation. One of the requirements of the historic tax credit was to remove a porch not original to the building. Site lighting was added to accent the architectural features around the building.

Upcoming Events

  • Design Smarter: Leveraging GIS, BIM, and Open Data for Better Site Selection & Collaboration

    Live Webinar

    Register for Free
  • Slate Reimagined: The Surprising Advantages of Slate Rainscreen Cladding

    Webinar

    Register Now
  • The State of Residential Design Today: Innovations and Insights from RADA-Winning Architects

    Webinar

    Register for Free
All Events