Training Recreation Education Center (TREC)

Project Details

Project Name
Training Recreation Education Center (TREC)
Location
55 Ludlow Street NewarkNewarkNJ07114
Architect
ikon.5 architects
Project Types
Project Scope
New Construction
Shared By
mdeak
Project Status
Built
Year Completed
2016
Size
24,000 ft²
Team
Design Principal: Joseph G. Tattoni, FAIA
Technical Principal: Charles J. Maira, AIA, LEED AP
Managing Principal: Arvind Tikku, AIA
Project Architect: J. Daniel Cummings, AIA
Project Coordinator: Michael J. Herbst, AIA

Project Description

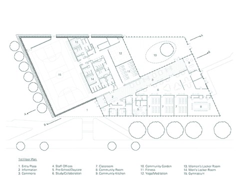
Motivated to provide vital education, recreation and training services to the underserved citizenry of Newark, New Jersey, the Newark Housing Authority aspired to design a facility that would be a social collector; a place where neighbors could gather, exercise, and receive training to improve their chances for gainful employment in a rapidly transforming digital-based economy. TREC (training, recreation, education center) is a community center set between an industrial and residential zone that houses vital services for a community that has few too institutions in its neighborhood.

The building’s triangular form results from the shifted urban grid where it meets Weequahic Park, an Olmsted-designed landscape set within the south ward of Newark. Inspired by the shift in the urban grid, the building’s expression is two slipping triangular forms set side by side. One triangle is solid and contains recreation, fitness and meditation spaces. One triangle is transparent and contains education and community meeting spaces. Its transparency conveys a sense of welcome and openness in the community. The luminous container is a beacon of hope and a pleasant place to gather, learn and play. Its bespoke design and full height windows, set largely within a window-starved community of public housing, allow passersby to witness the energy and rich roster of activities housed within and know that a substantive investment has been made in their future. This modest architectural urban intervention reinvents its neighborhood, reinvigorates its citizenry, and ultimately changes their future by providing them access to the programs and tools they need to succeed in a building that engenders productivity, connectedness and positive change.

Upcoming Events

  • Design Smarter: Leveraging GIS, BIM, and Open Data for Better Site Selection & Collaboration

    Live Webinar

    Register for Free
  • Slate Reimagined: The Surprising Advantages of Slate Rainscreen Cladding

    Webinar

    Register Now
  • The State of Residential Design Today: Innovations and Insights from RADA-Winning Architects

    Webinar

    Register for Free
All Events