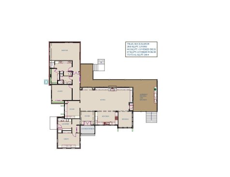
Trail Rock Ranch

Project Details

Project Name
Trail Rock Ranch
Location
Johnson CityTX
Project Types
Shared By
dmadsen
Project Status
Built
Size
2,888 ft²

Project Description

By working closely with our client and trade partners our Design/Build firm constructed a unique Hill Country home. In every aspect of the process we worked to maximize views and privacy by using exceptional, but simple materials such as salvaged timber and native stone. The following are Exceptional Features of the project.
1. The home was strategically designed to fit “within” the landscape, taking maximum advantage of the riverside location and distant vistas while preserving the 100 year oak trees and stone outcroppings. A combination of slab-on-grade and structural wood foundation was constructed to minimize impact on the site and tree roots while reducing construction cost due to the 9’ of grade differential.
2. As one enters the home, you are welcomed with an open, airy design that frames views of the river valley. The foyer features a barrel vault ceiling clad in antique timber and entry doors salvaged from the Holy Land. This space was designed to highlight an original oil painting by the owner’s late father depicting historic Jerusalem.
3. Salvaged pine wood floors and hand-hewn beams give the home a warm and well-appointed finish.
4. Furniture-grade millwork and granite combine to create a beautiful and functional open kitchen.
5. The public spaces are flanked in windows allowing for abundant natural light while covered porches offer protection from the harsh Texas sun. A large flat-screen TV automatically disappears through the millwork and down into the crawl space with a touch of a button for an unobstructed view.
6. The master suite projects through the trees and out over the steeply sloping bank out toward the river. With the 180 degree views, the master bedroom has a “tree house”, lofty feel.
7. The spacious bath features marble top vanities and hand etched tile, a private water closet and a walk-in shower. The walk-in closet is well organized with custom cabinetry designed to maximize storage space.
8. The home features a private study for him and a craft room, complete with a retracting table that accommodates her quilting projects.
9. A native stone fireplace warms the living area with clean burning LP gas.
10. The outdoor kitchen extends the couples entertainment area out on to the covered deck which again offers 180 degree views of the countryside and a stairway leading down to their adjacent guest house.

Upcoming Events

  • Design Smarter: Leveraging GIS, BIM, and Open Data for Better Site Selection & Collaboration

    Live Webinar

    Register for Free
  • Slate Reimagined: The Surprising Advantages of Slate Rainscreen Cladding

    Webinar

    Register Now
  • The State of Residential Design Today: Innovations and Insights from RADA-Winning Architects

    Webinar

    Register for Free
All Events