Trail Center at Camp Prairie Schooner

Project Details

Project Name
Trail Center at Camp Prairie Schooner
Architect
El Dorado
Project Types
Project Scope
New Construction
Shared By
dmadsen
Project Status
Built
Year Completed
2013

Project Description

This project won a 2016 AIA Small Projects Award.

Campus Housing / Merit
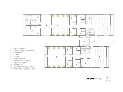
When the Kansas City, Mo., firm El Dorado designed this 48-bed bunkhouse project for a local Girl Scout camp, they faced an especially tight budget. So they tried to use as many existing resources as possible, placing the two bunkhouses close to a main road to tap into city utilities. The site also adjoins the camp’s longtime dining hall, where many of the girls’ activities take place. “We tried to create a little community of buildings,” says principal Douglas Stockman, AIA, whose own daughter is a Girl Scout.

Inexpensive materials, deployed cleverly, dress up the project’s basic forms. “I love it because of the simplicity and color,” said one judge. Alternating shades of corrugated metal siding contrast with cement-board panels painted the bright hues of Girl Scout cookie boxes. Interior light fixtures came from a designer (and former Girl Scout) found on Etsy.com. And the bunk beds were designed and built by students in a Kansas State University studio, taught by Stockman and fellow El Dorado principal David Dowell, AIA. —Meghan Drueding

Upcoming Events

  • Build-to-Rent Conference

    JW Marriott Phoenix Desert Ridge

    Register Now
  • Reimagining Sense of Place: Materiality, Spatial Form, and Connections to Nature

    Webinar

    Register for Free
  • Homes that Last: How Architects Are Designing a Resilient Future

    Webinar

    Register Now
All Events