Trail Center at Camp Prairie Schooner

Project Details

Project Name
Trail Center at Camp Prairie Schooner
Architect
El Dorado
Project Types
Community
Project Scope
New Construction
Shared By
Suren
Project Status
Built
Year Completed
2012
Size
4,430 ft²

Project Description

Recreational Projects
2012 Annual Design Review
El Dorado

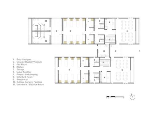
Camping once meant roughing it, but Girl Scouts in northeast Kansas and northwest Missouri can now earn badges without giving up modern comforts. The new Trail Center at Camp Prairie Schooner, designed by El Dorado, allows girls to camp in a natural setting while enjoying amenities such as Wi-Fi, indoor plumbing, and air conditioning. Located in a wooded area 19 miles southeast of downtown Kansas City, Mo., traversed by creeks and nature trails, the camp features two bunkhouses with kitchens, flexible spaces, a public restroom and shower facilities, accommodating up to 40 girls and eight parents or staff members.

The architects placed the two parallel, bar-shaped bunkhouses, totaling 4,430 square feet, adjacent to an existing dining hall to form an outdoor courtyard. Simple wood-framed scissor trusses support the bunkhouses’ roofs, which are clad in corrugated metal panels in alternating neutral colors that wrap the building’s long elevations. By contrast, the shorter, east- and west-facing end walls are as bright as the boxes of the Scouts’ famous cookies, layered with fluted, colored polycarbonate glazing and painted concrete board over a rainscreen. At night, the colorful end walls glow like lanterns, and during the day they allow light to penetrate. Light wells bring additional daylight into the center of each bunkhouse, and the color theme continues along a series of interior walls and the surfaces of the custom bunkbeds.

“I don’t know a child who wouldn’t want to stay in those bunkhouses.” —Elizabeth Ranieri

Upcoming Events

  • Design Smarter: Leveraging GIS, BIM, and Open Data for Better Site Selection & Collaboration

    Live Webinar

    Register for Free
  • Slate Reimagined: The Surprising Advantages of Slate Rainscreen Cladding

    Webinar

    Register Now
  • The State of Residential Design Today: Innovations and Insights from RADA-Winning Architects

    Webinar

    Register for Free
All Events