Tradecraft Industries

Project Details

Project Name
Tradecraft Industries
Location
DenverCO
Shared By
Gen Hicks
Project Status
Built
Year Completed
2017
Size
19,000 ft²

Project Description

“Trade: /trād/ n. a skilled job, typically one requiring manual skills and special training. Craft: /kraft/ n. an activity involving skill in making things by hand.”

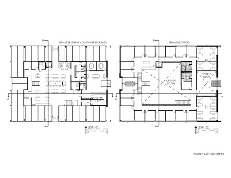
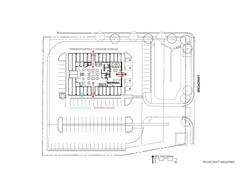
Tradecraft Industries is headquartered in a newly constructed, 19,000 SF industrial space with 20 private offices and over 200 flexible co-working memberships for small and start-up construction companies and design firms. The project goal was to create a collaborative environment that provides a place where contractors and designers can organically grow and support one another.

Conceptually, Tradecraft Industries was designed around the idea of multi-use. By selecting multiple-use building components, systems, and materials the concept allows for cost and labor efficiencies while offering flexibility and streamlined construction. A layering process was designed to maximize multi-use components. This process starts at the building’s base, created from shipping containers, setting the foundation and boundary for the building. The containers function as storage that members can access from outside the envelope, the structure of the second floor, a central conference room with views of the Rocky Mountains, and entry portals to the building. The base is then wrapped with a pre-engineered metal building. Continuous ribbon windows, maximizing the structural nature of the lightweight envelope, provide views out and let daylight in.

Economical, off-the-shelf materials were chosen for use throughout the interior based on the same principle of multiuse while creating an overall aesthetic that showcases the construction industry. Polycarbonate paneling is directly attached to studs for the interior office walls, allowing light to filter through the offices into the community bullpen space. Used as an economical, maintenance free, and durable finish material, OSB sheets make up the demising walls in the offices.

The central boxed element that separates the entry area to the member-only bullpen and office space zone houses all utility functions including stacked toilet rooms on both levels, janitor closets, electrical and IT rooms. By keeping all of the building systems housed in one central core, significant cost efficiencies and a streamlined supply to the rest of the building was achieved.

This project was honored with an American Architecture Award in 2019.

Upcoming Events

  • Design Smarter: Leveraging GIS, BIM, and Open Data for Better Site Selection & Collaboration

    Live Webinar

    Register for Free
  • Slate Reimagined: The Surprising Advantages of Slate Rainscreen Cladding

    Webinar

    Register Now
  • The State of Residential Design Today: Innovations and Insights from RADA-Winning Architects

    Webinar

    Register for Free
All Events