Town of Truckee Public Service Center

Project Details

Project Name
Town of Truckee Public Service Center
Location
Donner Pass RoadTruckeeCAUnited States
Project Types
Government
Shared By
Jiane
Project Status
Built
Year Completed
2011
Size
46,000 ft²
Certifications & Designations
LEED Silver

Project Description

The Service Center is situated in a town that is 5900 feet above sea level, located in the mountains of north-eastern California. At this altitude, the site receives an average of 204 inches of snow annually, which makes it the 5th snowiest city in the United States. This mountain area also has more sun than most of us expected: 245 days. The project includes two phases: The Administration/ Maintenance facility (Phase I) and the Animal Shelter (Phase II). The two civic buildings form a public plaza for this mountain community. The Phase I Service Center serves functional needs of the Public Works Department Administration and corporation yard, while respecting the alpine context and the town’s rustic heritage aesthetics.

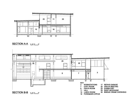
The goal for the Service Center was to provide enhanced services to the community while preserving the small town character and natural environment of the area. The buildings are nestled against mountains in a forest of deciduous and evergreen trees on 16.4 acre parcel. Working with the vocabulary of the vernacular log cabins and the identity of a civic building, the Center’s main structural component is a system of exposed glue-laminated roof beams, which extend beyond the building to the natural setting. In the administration clerical area, a two-story volume with exposed glue-laminated columns accentuate the height of the space and opens the views to the taller pine trees. The low-scale porch entrance, the conference room with the projected roofs, framed with exposed Cedar roof joists, keep the building in scale and engage the surroundings. The main roof structure consists of 4×6 tongue and groove decking supported by glue-laminated beams, and is exposed to view, inside and out. This solution proved to be cost-effective, structurally-sound, and aesthetically-pleasing. The beams, as well as the tongue-and-groove fir decking, extend to the outside and become the exterior soffit material. The extension visually connects the interior and exterior. The warm, sheltering plane of the roof beyond the building provides shade to the high windows to let in soft, diffused daylight. At the early winter evenings, the lights from within the building illuminate the exterior beams and soffit, giving the administration building an inviting warm glow.
One design advantage that the use of wood brought to the administration building was its ability to extend from the interior to the exterior without the thermal bridging that would occur with steel. Connections are straightforward, easy to install, and can be expressed with exposed black fastening bolts. The roof is designed to carry the weight of the heavy snow loads of the High Sierra mountains.

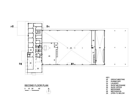
The challenges of meeting the facility’s industrial needs in combination with delivering a humane and energy efficient workplace resulted in a number of unique features and strategies. The Administration Building consists of offices, conference rooms, a multipurpose room and temporary quarters for staff during periods of winter emergency services. Attached to the office building is a 10-Bay Garage Maintenance Facility featuring a bridge crane over half the bays, mezzanine storage areas and a wash rack. The project has been designed to a LEED Silver Standard and has won two ASHRAE Technology 1st Place Awards for New Industrial Facilities, the Golden Gate Chapter and Region X (CA, HI, AZ, NV). The building is sited to take advantage of passive solar energy for winter heating. The administration building maintained a narrow footprint to maximize the penetration of day-light and increase natural ventilation into the interior. A roof mounted PV system and an underground Geothermal Heat Pump system are two active energy efficient components of this project. The design of the building is optimized for snow country conditions. De-icing strategies use radiant heating at north facing ground level vehicle aprons while a system of heat pads and rain water leader heat tape are incorporated at the roof level for year-round ice and water control. Rainwater is captured and stored for re-use at the wash rack.

Upcoming Events

  • Build-to-Rent Conference

    JW Marriott Phoenix Desert Ridge

    Register Now
  • Reimagining Sense of Place: Materiality, Spatial Form, and Connections to Nature

    Webinar

    Register for Free
  • Homes that Last: How Architects Are Designing a Resilient Future

    Webinar

    Register Now
All Events