Town Mountain Residence

Project Details

Project Name
Town Mountain Residence
Location
AshevilleNC
Architect
Samsel Architects
Project Types
Outbuilding
Shared By
dmadsen
Project Status
Built
Size
4,430 ft²
Room or Space
Outdoor

Project Description

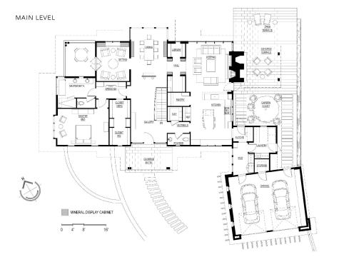
Designing for the specific needs of a client is one of the more rewarding and challenging aspects of custom residential architecture. Each space was designed around particular furniture arrangements and artworks. Every room was tailored to fit the owners’ needs, functions and objects. In particular are the custom display cabinets integrated into several rooms that hold the geologist owners’ extensive mineral collection.

The home was also designed to blend into its surroundings. Orientation and placement on the site provides spectacular mountain views without marring the views from the neighboring hillsides. We worked with the owners’ space requirements and developed a simple massing for the home and a low-pitched roof form that appears to hug the sloping land. Natural colors and tones were used for the exterior palette to blend the home into the surrounding forest.

Indoor-outdoor living was an important aspect that shaped the design process. Outdoor living spaces were carefully organized around the Main Level living spaces to create a physical connection to the outdoors, while still maintaining an unobstructed visual connection to the mountains and landscape from both interior and exterior rooms. Several covered and open porches and terraces were designed around the home allowing for a variety of outdoor gathering space options depending on the level of privacy desired as well as amount of sun or shade desired at different times of year and times of day.

Upcoming Events

  • Design Smarter: Leveraging GIS, BIM, and Open Data for Better Site Selection & Collaboration

    Live Webinar

    Register for Free
  • Slate Reimagined: The Surprising Advantages of Slate Rainscreen Cladding

    Webinar

    Register Now
  • The State of Residential Design Today: Innovations and Insights from RADA-Winning Architects

    Webinar

    Register for Free
All Events