Towers Within A Tower

Project Details

Project Name
Towers Within A Tower
Location
Hong KongChina
Architect
Kwong Von Glinow
Project Types
Residence Hall
Project Scope
New Construction
Shared By
Ashleigh Popera
Project Status
On the Boards/In Progress
Size
500 ft²
Team

Project Description

FROM THE ARCHITECTS:

Kwong Von Glinow Design Office was awarded 1st Prize for their project Towers within a Tower for the 2017 Hong Kong Pixel Homes Competition. Their project responds to current housing shortages in Hong Kong caused by inflationary markets and economic disparity, and uses architecture’s agency to innovate a new form of domesticity.

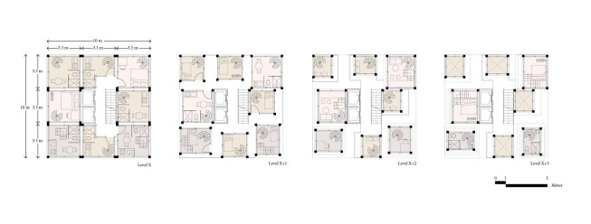
Our proposal “Towers within a Tower” for Pixel Housing is to bring Hong Kong’s urban verticality into the apartment unit itself. In our proposal, apartment spaces, typically inhabited as horizontal slices, are stacked one atop the other vertically. Each apartment unit therefore becomes its own tower. When the units aggregate next to one another, they produce shared outdoor spaces: a local neighborhood at every level. Read from both outside and within the tower, residents can lay the claim “That’s my tower.”

While great variation can occur through these unit adjacencies, an economy of construction maintains three basic unit types: Studios of 32 m2, Single Bedrooms of 37m2, and Family Units of 42m2. Each of these unit towers are unique in their proportion, organization, and color, to serve the varying needs of each tenant type.

Each tower unit is composed of prefabricated concrete elements, which, once assembled into boxes, can be easily mounted onto each other with cast-in steel-plate embeds. The concrete frame is clad with colorful ceramic tiles echoing the common construction material of residential towers in Hong Kong. The modularity of the system and minimal material weight allow for economic fabrication and flexible transport. This system can be aggregated across scales, from a four-story rural housing unit to a tower in the city each time adapting to different ratios of studios, single bedrooms, and family apartments. As a system, the tower unit produces a new typology of residential living, where daily life is framed within pixels.

Upcoming Events

  • Build-to-Rent Conference

    JW Marriott Phoenix Desert Ridge

    Register Now
  • Reimagining Sense of Place: Materiality, Spatial Form, and Connections to Nature

    Webinar

    Register for Free
  • Homes that Last: How Architects Are Designing a Resilient Future

    Webinar

    Register Now
All Events