Tower House

Project Details

Project Name
Tower House
Location
PortlandOR
Project Types
Shared By
Symone

Project Description

2016 Residential Architect Design Awards
Custom House Less Than 3,000 Square Feet: Honorable Mention

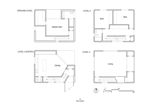
The design of the Tower House in Portland, Ore., starts with a four-story tube, from which sections on each floor are carved to form loggias with expansive views. The hillside site had been deemed unbuildable, but Waechter Architecture devised this vertical solution, which features one primary program on each floor—dining room, living room, and two floors of bedrooms—in order to minimize the house’s footprint and foundation. A steel pedestrian bridge connects the third-floor entrance to the top of the hill. The house is clad in black corrugated steel and has rounded corners that dispensed with the need for corner trim. In contrast, the interior features white walls and oil-rubbed white oak floors and finishes.

Upcoming Events

  • Design Smarter: Leveraging GIS, BIM, and Open Data for Better Site Selection & Collaboration

    Live Webinar

    Register for Free
  • Slate Reimagined: The Surprising Advantages of Slate Rainscreen Cladding

    Webinar

    Register Now
  • The State of Residential Design Today: Innovations and Insights from RADA-Winning Architects

    Webinar

    Register for Free
All Events