Tower Bára II

Project Details

Project Name
Tower Bára II
Project Types
Cultural
Project Scope
New Construction
Shared By
Madeleine D’Angelo
Project Status
Built
Year Completed
2009

Project Description

FROM THE ARCHITECTS:

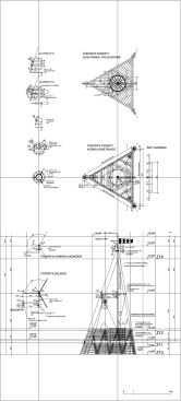
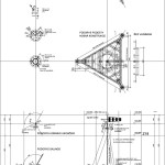
The history of the tower Bára has got all attributes of a dramatic story. Town council of Chrudim decided to build an out-look tower in the forest boundary, where the landscape provides beautiful panoramic view of the surroundings. An architectonic contest was made and as the winning project was marked the one by Martin Martin Rajniš from e-Mrak team. An out-look tower in the shape of truncated triangular pyramid, made out of larch planks with minimum number of fixed joints, secured by metal tow bars. Access to the view platform is provided by circular oak stair, which is fixed on the convulated steel pole rod in the middle of the tower. Upon the view platform is placed a mast made of steel tubes with flashlight on the top. Out-look Bára was festively opened for public on the 21st of June 2008. Unfortunately, a massive storms, with a power of tornado in some locations, swept across the Czech republic just four days later. One of them appeared at the region of Chrudim and caused irrecoverable damage to the new-built out-look. Whirlwind left nothing but a mass of wreckage a few meters from the place where the original out-look was placed. However, citizens of Chrudim did not give up and the decision to build a new one was made almost immediately. On the 3rd of September 2009 was the new tower – Bára II opened. This new out-look is pretty much the same as the previous one was. It is just slightly lower and built in a way to resist the wind with power of a cyclone (approximately 200 kms per hour, in contrast to the previous one, which was able to resist only 130 kms per hour). Bára II has also got more security components, including steel cables with tension varying each thirty minutes according to air moisture. View from the platform is usually the most interesting feature of the out-look, but Bara II has much more to offer. For visitors with interest in technics has to be pleasure to see the unique construction with number of simple, but clever details. Those, who are more into philosophy could use the wall of the tower as a source of meditation. Variation of horizontal wooden lines and gaps between them makes really delightful view. The structure reminds of water clarification and makes interferential optical effect, which is well known for its sedative action.

Project Credits
Construction design cooperation: Ing. Vít Mlázovský
Investor: Městské lesy Chrudim s.r.o.
Foundations altitude: 346,5 m n.m.
Height: 25,7 m
Height of the viewing platform: 14,8 m
Construction material: larch timber 41,3 m³
Staircase material: oak timber 1,2 m³
Construction manager: Václav Horecký
Construction duration: 100 days
Opening date: 3.9.2009

Upcoming Events

  • Design Smarter: Leveraging GIS, BIM, and Open Data for Better Site Selection & Collaboration

    Live Webinar

    Register for Free
  • Slate Reimagined: The Surprising Advantages of Slate Rainscreen Cladding

    Webinar

    Register Now
  • The State of Residential Design Today: Innovations and Insights from RADA-Winning Architects

    Webinar

    Register for Free
All Events