Torcasso Residence

Project Details

Project Name
Torcasso Residence
Location
Santa FeNM
Architect
Page
Project Types
Single Family
Project Status
Built
Year Completed
2012
Size
6,000 ft²

Project Description

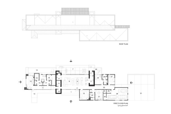
The Torcasso Residence is inspired by the spectacular landscape of northern New Mexico and by the prospect of living in nature in a sustainable way that creates a constant and memorable connection to the mountains, the sky, the clear air and the climate. This passive solar home lies long and low, nestled into the contours of a steep hill just under its crest and virtually invisible from approaching roads. Expansive views from its north face stretch to Espanola and Los Alamos twenty miles away with layers of mountain ranges beyond a broad valley. The south face of the house works with a 20-foot rock outcrop on the side of the hill to create a long, thin, sunny courtyard. In the midsection of the house, two rammed earth volumes bookend the public spaces and frame 60-foot apertures that link the living/dining/kitchen area to the broad view on one side and to the contained courtyard on the other. Large operable glass panels slide away to create complete continuity from panorama, open terrace, trellised outdoor room and high-ceilinged interior space on the north side to more intimate wood-capped interior space, roofed terrace and courtyard to the south. For much of the year this space becomes a naturally climate controlled interior environment that has the feeling of living outdoors. Larger, taller window openings to the north create optimum natural light while reducing summer heat gain. Lower, shaded opening to the south also avoid summer warming, but provide significant heat gain from the low winter sun. Both interior and exterior walls of the more contained bedrooms, bathrooms, library, and home office for the owner’s business that are located at each end of the central space are made of air-entrained concrete and work with the rammed earth to create extraordinary thermal performance for the entire house. In an alpine desert climate with high diurnal swing and a predominance of sunny days, the house’s high thermal mass along with carefully placed fenestration and seasonally responsive solar shading provides passive thermal stability for most of the year. Rainwater collection and storage from all constructed surfaces, a green roof planted with native grasses, a large (but carefully concealed) photovoltaic array as well as absolutely minimal disruption of both contours and vegetation during construction are other examples of how respect for natural forces and a sustainable ethic permeated all aspects of design for the house. Performance, as measured by a comprehensive energy monitoring system, has exceeded expectations with no fossil fuel being used in the house for most of the year and less than 90 minutes of heating or cooling required on the very most demanding days. The comprehensive use of high thermal mass along with optimum orientation, maximum utilization of prevailing breezes and extraordinary insulation from green roofs creates a passively heated and cooled house through all but the most extreme seasonal conditions.

Upcoming Events

  • Design Smarter: Leveraging GIS, BIM, and Open Data for Better Site Selection & Collaboration

    Live Webinar

    Register for Free
  • Slate Reimagined: The Surprising Advantages of Slate Rainscreen Cladding

    Webinar

    Register Now
  • The State of Residential Design Today: Innovations and Insights from RADA-Winning Architects

    Webinar

    Register for Free
All Events