Project Description
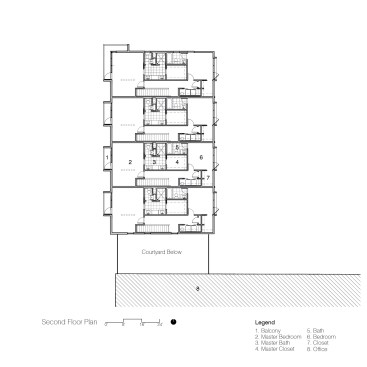
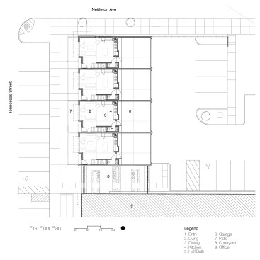
An abandoned corner lot at the edge of the South Main Arts District presented a varied context for four new townhomes. The client, a residential developer burned by the economic downturn of 2008, wanted to get back into the game with a development on an empty corner lot on a street occupied by repurposed warehouses and single-family residences. Because of the tentative residential market, the client needed a flexible plan that could be rented in case the units did not sell (all sold before construction was complete). Each room of the modestly scaled units is made to feel more expansive by utilizing floor to ceiling glass, private patios, and balconies to extend the spaces outdoors. The client’s interest in creating multiple uses, density, and activity on the site was addressed by allowing the adjacent office building he owns to use the rear parking lot while residents are mostly gone during the day. In order to fully utilize the site and further increase density, the client has started construction on his personal residence on the northeast corner of the site, adding to the mix of uses and programs. The design responds formally to the chaotic amalgamation of styles and scales of the street by maintaining a simple rectangular brick volume articulated by projecting metal balconies. A wooden façade is revealed as the brick is peeled away from the condo entries while at the sides of the building, the brick dissolves into a cement board and batten system as a compositional play on the fenestration pattern. The project integrates modern residences into the vibrant fabric of the South Main Arts District.