Tiny Lounge

Project Details

Project Name
Tiny Lounge
Project Types
Hospitality
Shared By
dmadsen
Project Status
Built
Size
2,000 ft²

Project Description

Looking at the short list of wines at the Tiny Lounge brings an admonition from designer Brad Lynch. “This is a place for well-crafted drinks,” he says—and while that thoughtful mixology might not have been the precise inspiration for his design of the bar’s interior, it is instructive. Chicago’s original Tiny Lounge was aptly named—at 1,200 square feet, it was nestled beside the Elevated train structure on the city’s North Side and had the Rat Pack feel that the word “lounge” can still evoke.
When a remodeling of the adjacent El station required Tiny to move, Lynch, a partner at local firm Brininstool+Lynch, tried to rally support for a new structure that would capture unused space beneath the train tracks. That proposal failed—after being mired in bureaucracy—and three years later and a mile away, the bar reopened in a phoenixlike revival.
The reimagined lounge’s thoughtful details reflect the long gestation period. Lynch is a self-acknowledged aficionado of the traditional cocktail lounge—a type that hasn’t been well-represented in Chicago, where the simple neighborhood bar is king. The designer was a regular at the old Tiny Lounge because its owners had crafted a space where a successful professional, more than a decade removed from college, could comfortably have a cocktail without feeling out of place. “It’s acceptable for a social or a business meeting,” he says. “You can meet people after work at a lounge because it seems more legitimate.”
When developing his initial designs, Lynch, Tiny’s owner, and her business partner spent three days in New York City, working their way through a list of 45 clubs, lounges, and hotel and restaurant bars. The threesome was looking for clues to provide a space to suit the two different crowds they wanted to attract during the course of a night. First was the early evening professional crowd—like Lynch—which tends to be more subdued. “As the evening goes on,” he says, “the crowd gets a little younger and the music is a little louder.” A small operation like Tiny needed to provide spaces and ambiance that could attract both crowds and allow them to coexist during the transitional period late in the evening.
Controlling sound became a prime consideration in developing the details that give Tiny its particular ambiance. Lynch typically favors a spare, modern aesthetic that generates warmth through thoughtful material selections. Wood is a particular favorite, and the need for sound diffusion throughout the space led him to develop a randomly stacked pattern of light Baltic birch plywood with exposed edges. Cherry panels provide contrast and help to define the space. Tiny’s front façade is glazed to capture as much daylight as possible during the early hours of the evening, when the more sedate professionals form the clientele.
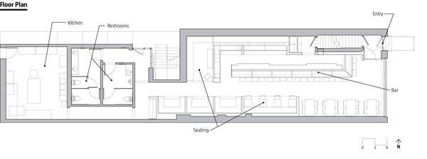
At 2,000 square feet, the space isn’t as small as its predecessor, but the long, narrow interior is still intimate enough to carry the moniker well. The bar proper dominates the north wall, where it helps camouflage an entry vestibule and a stairway to basement storage, and helps to keep the organization of the space as simple as possible. Small table seating is divided into three discrete areas. Barstool-height tables are located in front, near the entrance and storefront. Further back, Lynch creates more intimate choices with two seating areas enclosed within a wood cocoon—four two-top tables in one area and three renovated booths from the old Tiny Lounge towards the rear of the space.
Minimalism is essential to Brad Lynch’s conception of architecture—whatever the function. Tiny’s aesthetic is true to that inclination, but there’s an additive element drawn from the narrative that produced each piece of the lounge’s architecture. “They hand-stuff their own blue cheese olives,” he says—an attention to detail that the cocktail-lounge enthusiast embraces in his drinks, and in his own designs.

Upcoming Events

  • Build-to-Rent Conference

    JW Marriott Phoenix Desert Ridge

    Register Now
  • Reimagining Sense of Place: Materiality, Spatial Form, and Connections to Nature

    Webinar

    Register for Free
  • Homes that Last: How Architects Are Designing a Resilient Future

    Webinar

    Register Now
All Events