TinBox

Project Details

Project Name
TinBox
Location
637 Main StreetCanmoreABCANADAT1W 2B1
Project Types
Commercial
Shared By
MODA
Project Status
Built
Year Completed
2016
Style
Modern
Team
Architect: Ben Klumper
Architect: Dustin Couzens

Project Description

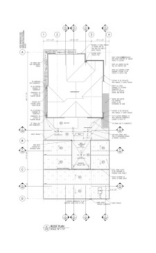
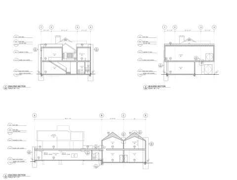
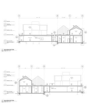
MoDA was approached in early 2015 to reimagine an existing commercial building – essentially a large house – on Main Street in the historic mining town of Canmore, Alberta into a mixed-use development of retail, office, residential and warehouse. One of the first questions we asked was: How do you marry the old with the new in an interesting way within the framework of Canmore’s stringent design guidelines?
The Rocky Mountain vernacular of the existing house speaks to Canmore’s past with its gabled roofs, decorative accents and use of natural materials. Rather than demolishing the house we saw an opportunity to create a dialogue between the past and the future. We abstracted the existing house by rendering it completely white in an almost ghostly manner. To complement this spectral condition, we wrapped it with a quiet, contemporary addition that derives its language from a modern interpretation of the existing building as well as from the local mining history. Clad in glass, charred cedar and standing seam metal, the new addition both contrasts and respects the existing building with an innovative interpretation of the vernacular.
One of the challenges set forth by the client was to address the suffering edge condition along Main Street. The north elevation of the existing house faces onto Main and due to its deep setbacks, covered porch and raised entry, the building lacked the allure of a commercial frontage. The client’s vision was to create a hybrid project in which the second level would remain residential, the main level would become retail, and the back would be developed as additional commercial spaces. Whitewashing the existing house subdues the second level, allowing it to recede visually. The addition extends to the setback and is enveloped with expansive glazing to establish a strong retail presence.
We also strived for sustainability on this project by retaining the original house and integrating green roofs and landscaping wherever possible. The rooftop lent itself naturally to becoming a landscape feature filled with local grasses. The opening cut along the west façade, which reveals the windows of the existing house, harbors a planter and adds texture along 6th Avenue. The charred finish of the cedar siding eliminates the need for paint or stain, allowing this already sustainable product last 100 years without refinishing.
Both the town and our client required us to provide space for public art somewhere on the site. Rather than take up space that could be used for the building, we came up with an innovative means of incorporating art right into the architecture. To celebrate the spectacle of winter, we devised a whimsical tectonic that expands upon the simple installation methods of the wood siding by adding numerous ledges that form a large, pixelated field across the entire west elevation. This field reveals itself by casting subtle shadows and comes alive during a snowstorm when the individual ledges accumulate snow.

Upcoming Events

  • Build-to-Rent Conference

    JW Marriott Phoenix Desert Ridge

    Register Now
  • Reimagining Sense of Place: Materiality, Spatial Form, and Connections to Nature

    Webinar

    Register for Free
  • Homes that Last: How Architects Are Designing a Resilient Future

    Webinar

    Register Now
All Events