Three Pines

Project Details

Project Name
Three Pines
Location
North BeachMD
Project Types
Single Family
Project Scope
New Construction
Shared By
UGC User
Project Status
Built
Year Completed
2014
Style
Modern
Size
2,151 ft²
Team
Principal: Joseph Tanney
Principal: Robert Luntz
Project Architect: Lindsay Kunz

Project Description

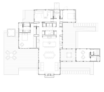
Three Pines is tucked along the edge of the Chesapeake Bay wetlands in Western Maryland. Designed for a soon-to-be retiring couple, the home is sensitive to the needs of aging inhabitants. The home was prefabricated off-site at a modular manufacturing facility in Pennsylvania. The local general contractor prepared the site and foundation for the arrival of (6) prefab modules. After the modules were delivered and craned into place, the contractor “zipped” up the home – seaming together the roof, walls, and floors. Cedar and cement board exterior cladding and ipe decks were then installed on-site. By prefabricating much of the home, the modest budget was kept in-check and the overall construction timeline was able to shrink to six months – two months for foundation work and module fabrication, and four months to finish the project after the modules were set. Three Pines is designed for outdoor living, incorporating decks off of nearly every space, and a screened-in porch for comfort during the summer season. Numerous sliding doors offer a natural flow in and out of the house, providing easy access to the nearby hiking paths along the water’s edge. The house includes a large open plan kitchen/dining/living communal space with a fireplace. This main space is surrounded by windows for views to the surrounding wetlands. The house also contains a master suite, guest bedroom & bathroom, screened porch, Karaoke room, sauna with powder room, and a home office.

Upcoming Events

  • Build-to-Rent Conference

    JW Marriott Phoenix Desert Ridge

    Register Now
  • Reimagining Sense of Place: Materiality, Spatial Form, and Connections to Nature

    Webinar

    Register for Free
  • Homes that Last: How Architects Are Designing a Resilient Future

    Webinar

    Register Now
All Events