Theatre de Kampanje

Project Details

Project Name
Theatre de Kampanje
Project Types
Cultural
Project Scope
Renovation/Remodel
Shared By
Sara Johnson
Project Status
Built
Year Completed
2015
Team

Project Description

FROM THE ARCHITECTS:

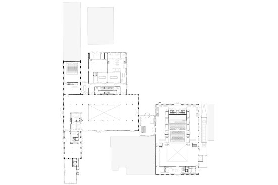
Theatre ‘The Kampanje’ is the new cultural
centre and playhouse of Den Helder, located in the city’s old naval yard
‘Willemsoord’. The project transforms a collection of maritime buildings, which
have been inaccessible for over 170 years, by introducing new public functions
such as a concert hall, flexible performance spaces, an art centre, offices and
a restaurant. Inspiration for the design is drawn from the identity and
character of the historic buildings, an interplay of structure, craft, public
space, docks and water.

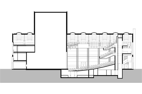
In order to maintain the unique character of
the interior and exterior spaces, the design is restrained, with careful
consideration undertaken for any changes made. To ensure the spatial experience
of the grand historic halls, an auditorium has been designed of glass. This
characterises the additions made, with an emphasis on transparency that stands
opposite the introverted nature of the existing historic fabric. Nevertheless,
the auditorium sits a naturally within the protected building, with the use of
glass creating long sightlines across the hall; seeing and being seen becomes a
guiding theme throughout. This conviviality is part of the traditions of the
theatre, with the social aspect often just as important as the performance
itself. The strength of the intervention lies in the precision of the
restoration, combined with the radical nature of the additions.

The plan has also an important urban component, which
will give fresh impulse to a forgotten edge of the city. By situating the main
entrance toward the centre of the site while adding secondary access to the
city at the side, a lively public path is created, along which various elements
of the programme are organised, restoring the connection between the city and
sea.

Upcoming Events

  • Slate Reimagined: The Surprising Advantages of Slate Rainscreen Cladding

    Webinar

    Register Now
  • The State of Residential Design Today: Innovations and Insights from RADA-Winning Architects

    Webinar

    Register for Free
  • Specifying Smarter with Copper-Clad Aluminum (CCA) Metal-Clad Cable

    Webinar

    Register for Free
All Events